
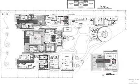
El estudio de arquitectura A-cero, dirigido por Joaquín Torres y Rafael LLamazares, presenta el proceso constructivo de un hotel situado en Phuket, Tailandia. Ubicado en un enclave privilegiado, en primera línea de playa, el inmueble linda también al Este con un río que condiciona su morfología. A continuación desgranamos las distintas propuestas de A-cero para dos de las habitaciones. En la primera parte habíamos visto el restaurante.
CROQUIS



EMPLAZAMIENTO

HABITACIONES
El hotel cuenta con 10 habitaciones en total, todas ellas de diseño exclusivo, y obra de reconocidas firmas del sector. A-cero ha diseñado dos de ellas.
PLANTA GENERAL

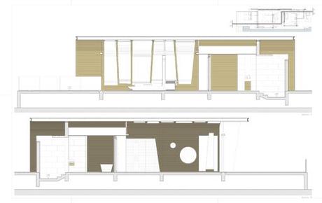
HABITACIÓN I
DISTRIBUCIÓN

SECCIONES


VISTAS
La estructura de las habitaciones se adapta a su envoltura exterior, con un particular abovedamiento. Los espacios están concebidos para ser especialmente amplios y diáfanos, en contacto con el exterior, en este caso un factor determinante al encontrarse éstos en primera línea de costa. Bandas de krion blanco articulan las paredes, completadas por tiras de leds en horizontal que iluminan la habitación.


En el baño se propone como solución estilística la Colección Spirit del estudio, realizada para Porcelanosa y que en este caso se integra a la perfección en el conjunto.

HABITACIÓN II
DISTRIBUCIÓN

SECCIONES


VISTAS
La otra propuesta de habitación se adapta a una estructura más vertical, reforzada por la pieza central de krion blanco que hace las veces de cabecero y divide en dos partes la estancia.


Se emplean en ambas materiales y tonos acordes a la zona donde se proyectan: una combinación de colores cálida que incorpora elementos autóctonos en madera, adaptándose al entorno y dialogando con el exterior del hotel en todo momento.

COMIENZAN LAS OBRAS …
MOVIMIENTO DE TIERRAS

CIMENTACIÓN Y VASO DE LA PISCINA ENTRE HABITACIONES






TABIQUERÍA, FORJADO Y ENTRADA A LAS HABITACIONES




HABITACIONES CON PISCINA COMPARTIDA














