
Hace unos días os mostramos dos viviendas unifamiliares simétricas en una exclusiva urbanización madrileña, diseñadas por el estudio A-cero. Hoy os mostraremos el proyecto de interiorismo que se propuso para ciertas estancias y zonas de ambas viviendas.
Recordamos que estas dos viviendas de 1.100 m2 aproximados se dividen en tres niveles: planta sótano, planta baja (donde se realizó una ampliación de 260 m2 en ambas) y planta baja.
INTERIORISMO EN PLANTA SÓTANO
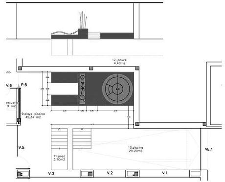
Localizado en la planta sótano de 500 m2, ambas viviendas cuentan con una zona destinada al ocio y al relax. Su superficie queda dividida en: salón de juegos, sala de cine, trastero, dos cuartos de instalaciones, vestíbulo, aseo de cortesía, vestíbulo y ascensor, sala de gimnasio, área de piscina y piscina interior, poza, jacuzzi, cuarto de baño, baño turco, sauna, ducha, aseo y vestuario. En el exterior podemos encontrar una terraza, una zona ajardinada y unas escaleras de acceso.
Vivienda 1

Vivienda 2

ZONA DE AGUAS
La zona de aguas está dividida en dos espacios. El primero de ellos corresponde a la superficie de casi 40 m2 que rodea la piscina interior de 30m2, junto con la poza y el jacuzzi de 4,40 m2.
CROQUIS JACUZZI

PLANO JACUZZI

IMÁGENES 3D ZONA DE AGUAS


IMÁGENES ZONA DE AGUAS




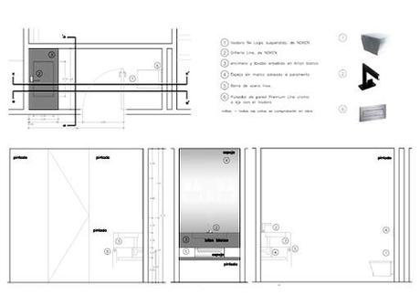
Un segundo espacio de 30 m2 está compuesto por un cuarto de baño que enfrenta en sus laterales el vestuario, la ducha y el wc, con dos salas destinadas a albergar el baño turco y la sauna.
PLANO CUARTO DE BAÑO

PLANO VESTUARIO

IMAGEN ZONA DE AGUAS II

SALA DE JUEGOS
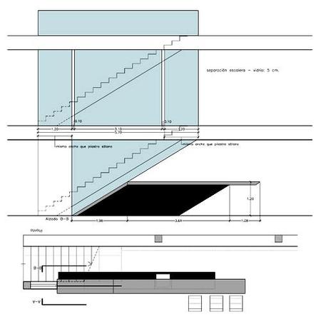
En este nivel encontramos también un salón de juegos de 115,30 m2. Destaca una barra de bar de aproximadamente 5m de largo por 1,20 m de altura situada bajo las escaleras de acceso a la planta.
SECCIÓN BARRA DE BAR

IMÁGENES 3D BARRA DE BAR

IMÁGENES SALÓN DE JUEGOS



INTERIORISMO EN PLANTA BAJA Y AMPLIACIÓN
Este nivel de aproximados 385,24 m2 está dirigido a las zonas de mayor uso común y la destinada a albergar el dormitorio principal.
Vivienda 1

Vivienda 2

En él encontramos, entre otras, zonas comunes como vestíbulo, un comedor, salón, ropero, un aseo de cortesía, el office con distribuidor,etc.
IMÁGENES INTERIORISMO EN PLANTA BAJA





En este nivel se realizó una ampliación de 260 m2 en ambas viviendas, por lo que en este hall se añadió un nuevo ascensor para acceder a la planta sótano.

La ampliación también supuso una ampliación de la terraza y pérgola en planta baja.



IMÁGENES AMPLIACIÓN GARAJE


