
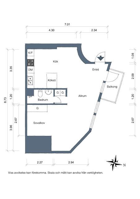
La zona de la cocina y el comedor quedan en un extremo y a medida que avanzamos en esa forma de letra nos encontramos el salón y el dormitorio.

















Se trata de una forma muy original al distribuir la vivienda, donde el baño y un pequeño vestidor se encuentran justo en el medio del estudio y todo lo demás sucede alrededor... 


Esta vivienda tiene además un balcón con espacio para mesa y sillas,donde disfrutar de los días de buen tiempo. Destaca por supuesto la decoración nórdica, sencilla y despejada, como debe ser en este tipo de viviendas.

