
El estudio de arquitectura de A-cero, os presenta un nuevo proyecto destinado a la realización de un txoco en Barajas, Madrid. Para aquellos que desconozcan este término, txoco (en viviendas unifamiliares), se trata de un espacio para el ocio situado habitualmente en planta sótano, aunque se pueden dar casos como este, en el que esté en planta ático.
Consta de un solo nivel en planta ático, situado en la cubierta de unas oficinas. El propietario, lo ha ubicado en la última planta donde se encuentra su empresa con una superficie total de 142m2.
CROQUIS

SECCIÓN

ALZADOS


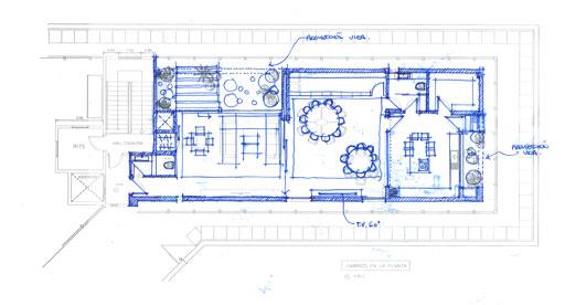
PLANTA
Se trata como antes se ha citado, de un local en planta ático, en el que se encuentran diferentes estancias destinadas a distintos usos. Se trata de un local de uso público enfocado a reuniones privadas, tanto a comidas/cenas de empresas, como cumpleaños, con una zona de juego y sala de TV para disfrutar de partidos con clientes etc. Dadas sus dimensiones, adquiere un carácter privado y familiar.
Un amplio hall de 10m2, nos da la bienvenida, conduciéndonos hacia al zona de estar y de reunión de 39m2. Lindando a ella se ubica el área de juego con un espacio dedicado al mus de 22m2. Llegamos a un amplio comedor de 40m2 que albergará a varios comensales.
Cocina de 20m2, distribuidor de 3m2, almacén de 9m2, con una aseo de 3m2, 4 estancias que se ubican al otro extremo de esta construcción. La cocina abierta, para que los clientes puedan observar lo que se cocina.

MAQUETA, DIFERENTES PERSPECTIVAS






PROPUESTAS DE INTERIORISMO



PROPUESTA ELEGIDA

Una vez mas el estudio apuesta por amplios espacios contrastados en blanco y negro.La utilización del vidrio como elemento funcional y decorativo forma parte de grandes ventanales proyectando luz, proporcionando aun mayor dimensión a este estancia. Dicha transparencia ofrece un campo de visión mas amplio y deja disfrutar a los comensales de las zonas verdes exteriores.
PROPUESTA ELEGIDA

