
El estudio de arquitectura de A-cero, presenta un proyecto de vivienda unifamiliar de hace unos años, ubicado en una lujosa urbanización en el noroeste de Madrid. A-cero se encargó de la realización del proyecto básico, pero no del de ejecución y dirección de obra. Desgraciadamente, algunos detalles se perdieron en el camino.
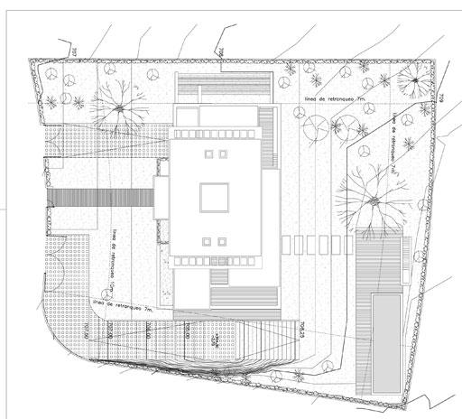
La parcela resultante de la parcelación de una finca matriz adopta la forma de un polígono irregular de cuatro lados, y comprende una superficie de 3.000m2. A requerimiento de la propiedad se desarrolla el proyecto básico de una vivienda unifamiliar, en la mencionada parcela, desarrollada en tres plantas. La superficie total construida de la vivienda son 1.360m2.
BOCETOS




EMPLAZAMIENTO

SECCIONES

ALZADOS


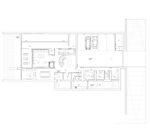
PLANTA SÓTANO
La planta sótano se distribuye un único nivel entorno a 500m2, albergando las siguientes estancias: garaje, cuartos de instalaciones, sala de cine, zona deportiva: vestuario, piscina y gimnasio, txoko, bodega, trastero, zona de servicio que incluye: estar de servicio, trastero, lavadero-tendedero, , cuarto de plancha, cuarto de baño de servicio y patio de servicio incluyendo además espacios servidores tales como distribuidores y circulaciones verticales: escaleras y ascensor. Piscina exterior con cuarto de instalaciones, vestuario y escaleras de acceso.

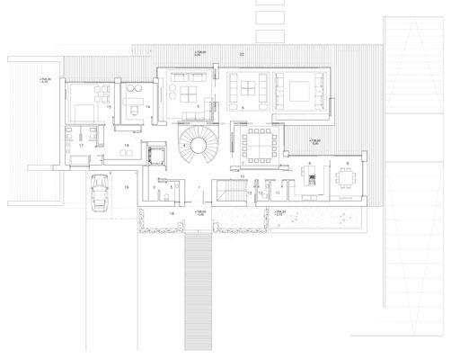
PLANTA BAJA
En planta baja, se sitúan las siguientes estancias a lo largo de 370m2: vestíbulo, ropero, 2 aseos, despensa, cocina, office, comedor, salón, estar, despacho, dormitorio principal en suite con vestidor, distribuidores, ascensor y escaleras.

PLANTA ALTA
La planta alta, alberga los siguientes espacios: vestíbulo, zona de estar, 4 dormitoriosen suite, escaleras y ascensor, todas las estancias a lo largo de 250m2. Este se considera el nivel más privado de la vivienda unifamiliar.

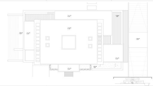
PLANTA CUBIERTA

PISCINA EXTERIOR

RENDERS















La residencia cuenta con una piscina exterior con un exclusivo diseño, con una superficie de 70m2,

Grandes ventanales favoreciendo la entrada de luz a la vivienda, acompañado de columnas decorativas aportando un toque clásico a la estancia más pública de la vivienda como es el salón comedor.

Baños construidos en marmol travertino, tanto en encimera volada como el revestimiento de la bañera de hidromasaje.
Amplia terraza exterior en la zona del dormitorio principal en la que se ha habilitado un porche para disfrutar de las maravillosas vistas del entorno circundante.


La vivienda consta de una piscina interior en planta sótano de 70m2, diseñada como carril a expresa petición del cliente.

Los materiales utilizados para el diseño de la vivienda son la piedra caliza blanca y el vidrio blanco.


Predominio exterior de líneas rectas y forma cúbica dotando a la residencia de modernidad y elegancia, una vez más el estudio apuesta por los claroscuros, dejando entrever el constraste con el colorido del paisajismo exterior.

