
Hoy el estudio de arquitectura A-cero, dirigido por Joaquín Torres, quiere mostraros el proceso de reforma del portal de un edificio de oficinas en pleno centro de Madrid. Sin alterar significativamente la estructura, se han mejorado y cambiado elementos y materiales para un funcionamiento óptimo del espacio, apostando también por un diseño mucho más moderno, práctico e integrado con el inmueble, que cuenta con 9 plantas.
ESTADO ANTERIOR
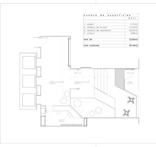
PLANTA

Aquí tenéis unas fotografías con el estado del portal original. Actualmente se encuentra en pleno proceso de reforma.




PLANOS REFORMADO
SECCIONES


PLANTA

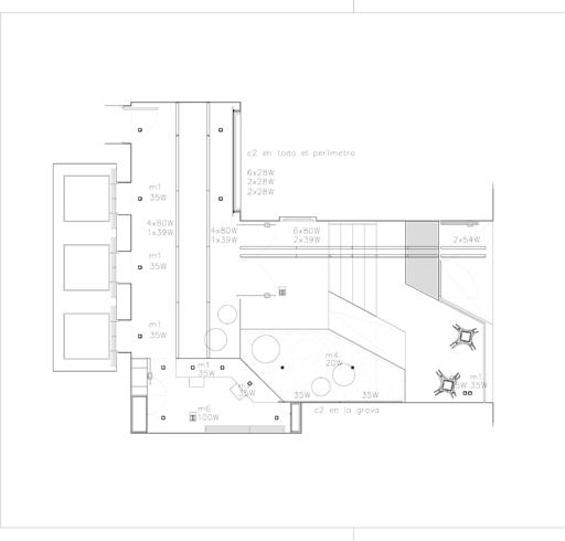
ILUMINACIÓN

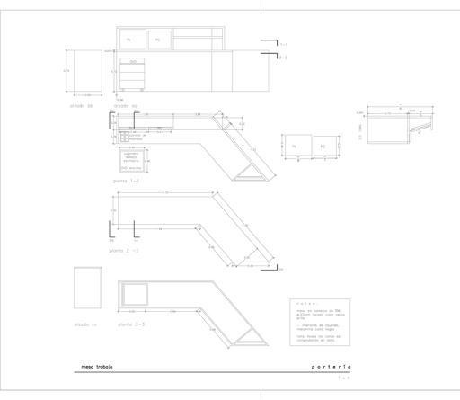
MOBILIARIO



Una pantalla donde aparecerán los logotipos y marcas corporativas de las empresas que ocupan con sus oficinas el inmueble será la guinda del proyecto. El soporte se integrará perfectamente a la pared, resultando un elemento más de diseño, a la vez funcional y estético. Por último, también se renuevan los buzones existentes y se pinta todo el conjunto mayoritariamente en negro con tonos ocres.
RESULTADO FINAL
PLANO DEL VINILADO SOBRE EL VIDRIO


Los mármoles que recubrían todo el portal han sido sustituidos por vidrio negro, dado su mal estado de conservación. Respetando la carpintería anterior se sustituyen también los vidrios exteriores por unos nuevos, se mejora el acceso y la rampa existente, se disponen foseados de luz en techos mediante leds, se incorpora una jardinera de grava blanca acompañada de las características bolas de A-cero, se ha instalado aire acondicionado y calefacción y dos maceteros Alma flanquearán la puerta de acceso.






La disposición del espejo pretende crear sensación de amplitud y juega con los reflejos que generan los distintos materiales empleados en la intervención, generando interesantes contrastes. Se diseñado un vinilo sobre el cristal para dar mayor visibilidad.


