
El estudio de arquitectura A-cero, dirigido por Joaquín Torres, presenta la reforma integral de una vivienda unifamiliar ubicada en Madrid. Os mostramos las imágenes exteriores.
Os recordamos que la vivienda consta de dos niveles y que ha tenido que adaptarse a un terreno con pendiente, lo que provoca que interiormente también se distribuya en diferentes alturas.
Exteriormente toda la fachada ha sido rediseñada. Al interior, lo más relevante es la redistribución de las estancias. En la fachada se emplearán materiales como el vidrio negro, vidrio blanco y aluminio dotando al exterior de grandes voladizos escultóricos . Asímismo, la vivienda contará con grandes ventanales abiertos al exterior, aprovechando de esta manera toda la luz que la excelente ubicación de la vivienda permite.
ESTADO ANTERIOR
SECCIONES

ALZADOS

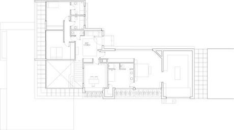
PLANTA BAJA

PLANTA ALTA

ESTADO REFORMADO
ALZADOS


SECCION PORCHE

PLANTA BAJA

PLANTA ALTA

TRAS LA INTERVENCIÓN DE A-CERO
EXTERIORES

ANTES DE LA INTERVENCIÓN DE A-CERO

TRAS LA INTERVENCIÓN DE A-CERO





ANTES DE LA INTERVENCIÓN DE A-CERO

TRAS LA INTERVENCIÓN DE A-CERO


ANTES DE LA INTERVENCIÓN DE A-CERO

TRAS LA INTERVENCIÓN DE A-CERO








Vota el Blog A-cero para los premios Bitácoras 2012

