
Hoy el estudio de arquitectura A-cero, dirigido por Joaquín Torres y Rafael Llamazares presenta dos modelos A-cero Tech para la realización de una escuelas infantiles al sur de Madrid.
La escuela cuenta con una superficie total de 970 m2, distribuidos en 290 m2 de servicio, y de 680 m2 de zonas infantiles, .
CROQUIS

SITUACIÓN

EMPLAZAMIENTO

ALZADOS

SECCIONES

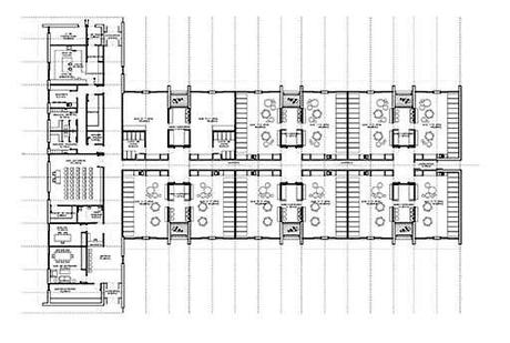
PLANTA
Como decíamos anteriormente, la escuela infantil consta de dos zonas, una de servicio y otras infantil.
En la zona de servicio, de 290 m2 podemos encontrar un vestíbulo, una sala para guardar los cochecitos, una aula de profesores de 20 m2, un despacho de dirección, un aseo, una sala polivalente de 40 m2, dos almacenes, una vestuario masculino y otro femenino, cada uno de 9 m2, una lavandería, una cocina de 46 m2, un cuarto de basura, un cuarto de instalaciones, y casi 60 m2 de circulaciones.
Con respecto a la zona infantil, de 680 m2, encontramos 12 aulas con aseo cambiador y cuarto de cunas, con una superficie de más de 50 m2 cada una. Además, otros 70 m2 de circulaciones en esta zona.

VISTAS
En ambas propuestas la escuela infantil consta de dos módulos conectados entre sí por un pasillo. Estos dos módulos responden a las zonas anteriormente mencionadas. El edificio más al Oeste está destinado para usos comunes, mientras que el segundo módulo alberga las aulas de los niños.
MODELO1
Ambos módulos están realizados en paneles de cemento reforzado y siguen un diseño de líneas rectas y puras y planos inclinados.
Las notas de color son una constante tanto interior como exteriormente, muy acordes con la finalidad de esta tipología arquitectónica. Así, los paneles blancos se visten con tonos coloristas que recorren los módulos.

Se ha procurado el máximo aprovechamiento de luz, disponiendo los módulos muy abiertos y volcados al exterior a través de la utilización de vidrio negro. La superposición en fachada en altura también responde a esta necesidad de lograr más luz interior.

El interior sigue la línea colorista marcada externamente. Los espacios de las aulas son diáfanos y totalmente abiertos al exterior, pero también conectados entre ellos mediante cristaleras internas que facilitan las labores de cuidado de los profesores.
Esta estancia está acabada en rojo y blanco, con la introducción de vinilos de peces y líneas que recorren las paredes del aula y de semiesferas decorativas en paredes y techo.

MODELO 2
Esta segunda propuesta sigue la misma estructura arquitectónica que la primera, lo que cambian son la situación y la combinación de los colores.
En esta opción los colores en los módulos se han introducido en las paredes laterales, frente a la opción anterior que los colores se encontraban en la fachada frontal.


Ocurre lo mismo con el interior, al tener todas las aulas la misma dimensión y distribución se ha optado sólo por el cambio de color, en verde esta ocasión.

