
El estudio de arquitectura A-cero, dirigido por Joaquín Torres y Rafael Llamazares, presenta dos viviendas unifamiliares simétricas en una exclusiva urbanización de Madrid. Estas viviendas de 1.100 m2 aproximados se dividen en tres niveles: planta sótano, planta baja y planta baja.
CROQUIS

EMPLAZAMIENTO

ALZADOS


SECCIONES

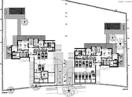
PLANTA SÓTANO
En ambas viviendas la planta sótano de 500 m2 aproximados construidos está destinada al ocio y al relax. Su superficie queda dividida en: salón de juegos, sala de cine, trastero, dos cuartos de instalaciones, vestíbulo, aseo de cortesía, vestíbulo y ascensor, sala de gimnasio, área de piscina y piscina interior, poza, jacuzzi, cuarto de baño, baño turco, sauna, ducha, aseo y vestuario. En el exterior podemos encontrar una terraza, una zona ajardinada y unas escaleras de acceso.
Vivienda 1

Vivienda 2

PLANTA BAJA
Este nivel de aproximados 385,24 m2 está dirigido a las zonas de mayor uso común y la destinada a albergar el dormitorio principal. En él encontramos el vestíbulo, un comedor, salón, el dormitorio principal (con dos cuartos de baño, área de relax, dos vestidores y un distribuidor), ropero, un aseo de cortesía, el office con distribuidor, despensa, una cocina y la zona de servicio formada por: dos dormitorios con cuarto de baño, tendedero, sala de estar, distribuidor y trastero. También se localiza en este nivel el garaje, que sufrió una ampliación en la posterior ampliación de la planta.
Vivienda 1

Vivienda 2

AMPLIACIÓN PLANTA BAJA
En este nivel se realizó una ampliación de 260 m2 en ambas viviendas, que consistió en la ampliación de la superficie del garaje (ahora con capacidad para 8 vehículos) y la suma de: sala taller, despensa, trastero, armero, bodega, distribuidor, dormitorio-estar, cuarto de baño, salón, sala de estar y lavadero.

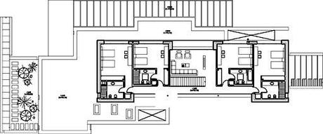
PLANTA ALTA
La planta alta, de 205 m2 aprox., cuenta con un distribuidor, cuatro dormitorios completos con cuarto de baño, una sala de estar con pérgola y una terraza.
Vivienda 1

Vivienda 2

EXTERIORES


Los acabados de la fachada se realizan en mármol travertino blanco y vidrio negro








