Hoy el estudio de arquitectura A-cero, dirigido por Joaquín Torres y Rafael Llamazares presenta una selección de imágenes de obra para una vivienda unifamiliar ubicada en la Comunidad Valenciana.
Os recordamos que esta vivienda cuenta con una distribución en tres niveles: planta sótano, planta baja y planta alta, además de una planta cubierta practicable donde se ubica un solarium. La superficie total de la vivienda es de 900’45 m2.
CROQUIS PLANTA SÓTANO

CROQUIS PLANTA BAJA

CROQUIS PLANTA ALTA

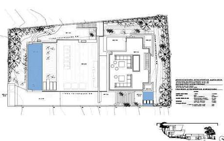
EMPLAZAMIENTO
La vivienda está situada en un enclave privilegiado y, de hecho, se ha reubicado para que disfrute de mejores vistas al mar. La planta semisótano, en pendiente, permite un mejor aprovechamiento del espacio.

Para más información acerca de la distribución de la vivienda, podéis visitar el post original pinchando sobre la siguiente imagen:

VISTAS
La vivienda se define a través de sus volúmenes rotundos y sus líneas, donde prima la ortogonalidad y la geometría, sólo rotas por marquesinas y voladizos que avanzan y retroceden en fachada disparando los puntos de fuga y otorgándole al inmueble una gran carga dinámica.




Este carácter escultórico se completa con la proyección de la vivienda hacia el exterior mediante la utilización de vidrio negro. El otro material dominante en la construcción es la piedra caliza blanca.



IMÁGENES DE OBRA











