
El estudio de arquitectura A-cero, dirigido por Joaquín Torres & Rafael Llamazares, presenta el segundo prototipo A-cero Tech. Esta vivienda de 134,28 m2 se divide en planta baja y planta alta, presentando la opción de incorporar alero en cubierta.
CROQUIS:


PROTOTIPO 2
SECCIONES
Con alero

Sin alero

ALZADOS
Con alero

Sin alero

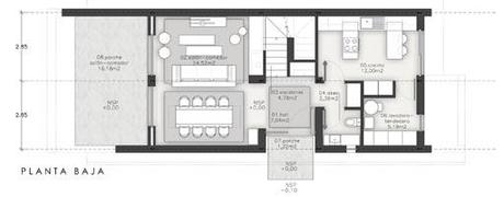
PLANTA BAJA
Este nivel cuenta con 67, 55 m2 interiores construidos. Tras el porche de acceso, el interior esta dividido en un hall de entrada, un salón comedor de 24,52 m2 con porche exterior, unas escaleras de acceso a planta alta, un aseo de cortesía de 2,39 m2 una cocina de 12 m2 y un lavadero-tendedero de 5,19 m2.

PLANTA ALTA
El nivel superior cueta con un distribuidor previo a las zonas más privadas de la vivienda: un dormitorio principal de 12,72 m2 con vestidor y cuarto de baño, dos dormitorios de 1,86 m2 y 10,16 m2 respectivamente y un cuarto de baño de 5,06 m2.

EXTERIORES
CON ALERO EN CUBIERTA
Al igual que el prototipo anterior, este cuenta con la opción de incorporar un alero en cubierta. Un extra que le otorga un toque más “tradicional” a estas viviendas.


El diseño de las fachadas combina la tradición con la esencia A-cero, integrándose en la naturaleza gracias a los materiales utilizados para su acabado.

SIN ALERO EN CUBIERTA

El acabado de los muros también puede variar según la ubicación de estas viviendas, siendo opcional el uso de la madera, piedra natural, pizarra y teja.

Para crear sensación de continuidad en la fachada y la sensación de quiebro en los muros para formar la cubierta, se utiliza un aplacado del mismo material.

INTERIOR
El interior nos ofrece todas las comodidades de cualquier vivienda A-cero Tech. Un diseño interior exclusivo donde apreciamos un amplio salón a dos alturas donde resalta una chimenea de leña junto a las escaleras de acceso a la planta alta. Podemos observar las mesas CSEC con acabado en madera y vidrio blanco. Se observan tiras de luz led ascendentes de pared a techo, recorriendo diferentes ángulos, como fuentes de iluminación indirecta.

