
El estudio de arquitectura A-cero, liderado por Joaquín Torres & Rafael Llamazares, presenta nuevas imágenes del proceso constructivo de una vivienda unifamiliar ubicada en Madrid. La vivienda está estructurada en 3 niveles, distribuidos a lo largo de 900m2.
EMPLAZAMIENTO

ALZADO

SECCIONES
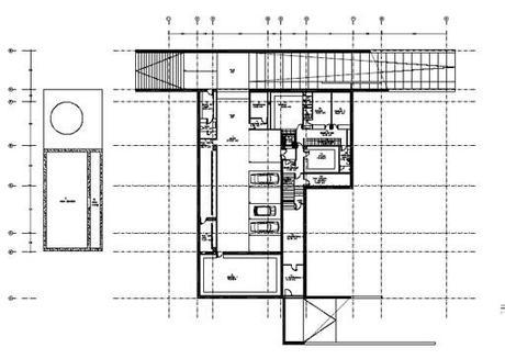
PLANTA SÓTANO
En este nivel se diseña un garaje con capacidad para 7 vehículos. Incluye un vestíbulo previo, un distribuidor principal y otro de servicio, dos fosos ventana correspondientes al salón y cuarto de estar, aperos de jardín, un cuarto de baño, un aseo de cortesía, dos cuartos trastero, tres cuartos de instalaciones, lavadero, armero, bodega con aseo, cuarto de plancha y rack. A la planta sótano se puede acceder por un ascensor, una escalera principal a la planta baja o una escalera de servicio a la planta de acceso.

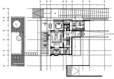
PLANTA BAJA
Este nivel de acceso a la vivienda, se encuentran las estancias principalmente diseñadas para el uso común. Nos encontramos en la entrada con un vestíbulo junto al distrubidor y unas escaleras de acceso a la planta alta. Entre las zonas comunes se encuentra un salón, el comedor, una sala de estar, el office y la cocina. También contamos con ropero, un aseo de cortesía, una despensa y una bodega. Tanto el comedor como el salón cuentan con porche. Destaca en este nivel la pérgola salón de por sus amplias dimensiones.

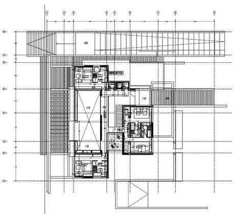
PLANTA ALTA
Este nivel cuenta con una superficie dedicada en exclusiva al uso privado. Un distribuidor en pasarela de vidrio nos permite el acceso a dos dormitorios principales en suite de grandes dimensiones, ambos con vestidor y cuarto de baño. Un segundo distribuidor nos traslada a un espacio para invitados donde observamos dos dormitorios completos de idénticas dimensiones. Esta planta incluye también un aseo de cortesía y un cuarto de limpieza.

EXTERIORES





En cuanto a materiales exteriores, la vivienda está terminada en mármol travertino combinado con vidrio negro y vidrio transparente.

NUEVAS IMÁGENES DE OBRA







