
Hoy el estudio de arquitectura de A-cero, liderado por Joaquín Torres y Rafael Llamazares, presenta el segundo modelo de viviendas A-cero Tech diseñadas para un proyecto de complejo residencial, localizadas en la costa del Pacífico en Panamá.
Para la elaboración de este complejo de lujo, el estudio A-cero ha propuesto dos modelos diferentes de vivienda. En este post os mostramos el segundo, con una superficie total construida de 244,26m2.
CROQUIS


LOCALIZACIÓN
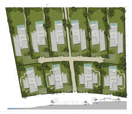
Este complejo residencial está localizado en en la costa del Pacífico de Isla Viveros, en el archipiélago de Las Perlas, Panamá.

De nuevo os mostramos unas imágenes de la parcela que albergará en conjunto residencial:


EMPLAZAMIENTO

SECCIONES

ALZADOS

PLANTA TIPO
Este único nivel se desarrolla en 244,26 m2. A través de un hall de entrada (con ropero de 2,91 m2) accedemos a las zonas de uso común de la vivienda, como son la cocina (de 15,79 m2), el salón (63,34 m2), el comedor (18 m2) y un aseo de cortesía (de 3, 26 m2). Las zonas privadas de localizan en los laterales de la vivienda, separadas por las zonas públicas, gracias a sendos distribuidores de 1,37 m2 para el dormitorio principal y el dormitorio 1, y otro distribuidor de 1,26 m2 para los dormitorios 2 y 3. Por un lado nos encontramos con el dormitorio principal en suite (22,95 m2 y cuarto de baño de 4,50 m2) y un dormitorio de 20,62 m2 con cuarto de baño de 4,54 m2. Y por otro, dos dormitorios de 17,74 m2 y 20,62 m2, con cuarto de baño de 4,50 y 4,52 m2 respectivamente. Todos los dormitorios cuentan con un porche de 0,96 m2, existiendo también un porche para el salón-comedor de 44,45 m2 y un porche de acceso de 2,116 m2.
La vivienda cuenta con una piscina de 20,65 m2 junto a una terraza de 20,30 m2 para su disfrute. Un acceso rodado de 68,50 m2 y un acceso peatonal de 32,20 m2.

EXTERIORES


Al igual que en el modelo que presentamos ayer, el acabado de la fachada está realizado en piedra natural beige clara y piedra natural marrón oscura.


Vota el Blog A-cero para los premios Bitácoras 2012

