
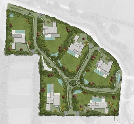
Hoy el estudio de arquitectura de A-cero dirigido por Joaquín Torres y Rafael Llamazares, presenta un Masterplan en la India. Se trata de una propuesta para un complejo residencial de lujo ubicado en Anand, próximo al río Nallah.
CROQUIS


LOCALIZACIÓN

EMPLAZAMIENTO

Dicho complejo se traduce en una exclusiva urbanización que abarca una superficie total de 6,5 acres, es decir, 25.000m2; repartidos en 6 parcelas de 4.046m2 con viviendas de 500m2.

ACCESO AL MASTERPLAN
Existen dos accesos a la urbanización que incluyen sendas garitas de seguridad y control de acceso: un acceso en el lado Este y otro situado en el NorOeste, que sirva en un futuro de conexión con la parcela contigua.
ACCESO ESTE – ENTRADA AZUL
Secciones y alzados

Exterior

ACCESO NOROESTE – ENTRADA VERDE
Secciones y alzados

Exteriores


RECORRIDO INTERIOR
Respecto a la circulación en el interior del complejo, se plantea un recorrido orgánico por el Masterplan que permita observar el paisajismo. Por este motivo (el disfrute de las zonas verdes que inundan el recinto) los accesos rodados son de largo recorrido con pequeños desniveles, con espacio suficiente que permita la doble circulación de vehículos. También el recorrido contempla una vía peatonal.
Secciones

El respeto al medio ambiente es primordial, por ello el paisajismo se basa en la conservación de las especies vegetales autóctonas, utilizando plantas ‘Tulasi’ para este tipo de arquitectura. Un ejemplo de ello son los diferentes tipos de árboles que podemos encontrar en las villas, tales como el ‘neem tree’, ‘peepel tree’, ‘gtulmohar’ y ‘mulberry’. Además, dentro del recinto circulan libremente vacas y pavos reales. El bambú es otro elemento muy utilizado en el paisajismo de estas villas.

En cuanto a los materiales para la calzada, se propone un adoquinado que ayude a limitar la velocidad de circulación en el interior del recinto.

En el exterior de las villas también se incluye un mínimo espacio para el aparcamiento de visitas, que en la medida de lo posible serán emplazados en la esquina Noroeste de la propiedad.
ROTONDA
La rotonda alberga una pieza escultórica de formas predominantemente curvas.
Plano rotonda

Exterior rotonda

MURO EXTERIOR
En estas villas se busca guardar la privacidad de los propietarios, dotándolas de un cerramiento perimetral, de aproximadamente 3,75 metros de altura. Un límite físico que dota de uniformidad al conjunto pero no rompe con el paisajismo
PLANOS, ALZADOS Y SECCIONES

EXTERIOR

PARCELAS-VILLAS
En esta superficie total del masterplan de 25.000m2 albergará 6 exclusivas villas de lujo de 4.046m2, de 500m2/villa.
Estas viviendas cuentan con unas zonas verdes mínimas de 2.023m2, el 50%parcela. La superficie de cada parcela puede reducirse si es necesario entre 100 y 350m2 para la introducción de todas las instalaciones comunes.
Plano villas

Exterior

VIVIENDAS – PRIMERA PROPUESTA
Se propone una primera opción de viviendas de lujo que se distribuyen 500m2, de dos niveles: una planta baja de 506m2 y una planta alta de 304m2, en una altura máxima total de 9 metros.
CROQUIS

Emplazamiento

Secciones

Plantas
Todas estas villas con una superficie aproximada de 500m2 cumplen como un programa de necesidades mínimas de: tres habitaciones en suite, una habitación en suite para invitados, cocina con despensa, un salón familiar y una pequeña habitación de rezo.

Exteriores

Las villas de lujo están diseñadas, al igual que el conjunto del masterplan, en base a los principios del Feng Shui y el flujo libre de energía. Se reduce el impacto de carbono mediante la arquitectura sostenible y el uso de energías renovables. En el diseño de estas viviendas se observa la predilección de las formas rectilíneas (mostrando especial gusto por la vivienda A-cero en Sotogrande con Chill-Out en la cubierta).

Respetando el estudio del Feng Shui antes mencionado, se han respetado tres principios básicos en toda la construcción: una diferencia de alturas en la que todo aquello situado al Suroeste debe estar a mayor altura que lo ubicado al Noroeste, la localización de todas las instalaciones eléctricas o de fuego al Sureste, y la no colocación de elementos de agua en esta última orientación.

Los materiales utilizados en la fachada son: piedra blanca caliza y mortero mono capa gris.
