
El estudio de arquitectura A-cero, dirigido por Joaquín Torres & Rafael Llamazares, presenta un nuevo prototipo de vivienda con el sistema modular de entramado ligero de madera de Arquima, un modelo de la nueva colección ARQUIMA DESIGN que verá la luz en 2014. La vivienda cuenta con superficie total construida de 122,72 m2 distribuida en un único nivel.
El sistema SEA es el sistema modular con estructura de madera tradicional de Arquimia utilizado especialmente para la fabricación de viviendas unifamiliares y pequeños edificios de hasta dos plantas de altura. Un sistema sólido, seguro, rápido y de gran calidad.
CROQUIS

ALZADOS

SECCIONES

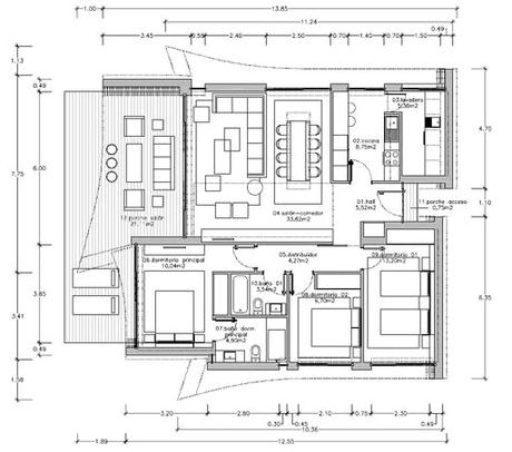
PLANTA
La vivienda cuenta con una superficie total construida de 122,72 m2, a los ue hay que sumar los casi 40 m2 de los porches en salón y entrada.
El interior se distribuye en un área de estancias de uso común como es el hall, la cocina de 8,75 m2 con lavadero independiente, un salón comedor de más de 33 m2, y un distribuidor que conecta con el área de uso privado. El espacio de uso íntimo lo compone el dormitorio principal de 10 m2 con baño propio de 5 m2, dos dormitorios (de 13,20 m2 y 9, 70m2) y un cuarto de baño.

PLANTA CUBIERTA

VISTAS EXTERIORES
Este nuevo diseño para Arquima destaca por su acabado natural, la madera. Un material noble que conecta con la naturaleza, que aporta una belleza y calidez a la vivienda difícil de igualar.

Su característica fachada es un juego de volumetrías donde las sinuosas curvas que lo forman envuelven la estructura de la vivienda. Vemos como una de las fachadas laterales queda enmarcada por un volumen que conecta finalmente con el resto de la fachada creando un juego de planos.

El acabado presenta diferentes tratamientos en la superficie de la fachada, adquiriendo diferentes tonalidades que rompen la monocromía del conjunto.

El acceso principal se presenta como una apertura vertical dentro de un gran bloque de forma orgánica

En la fachada posterior se presenta un porche que conecta el interior y exterior de la vivienda gracias a los amplios ventanales dispuestos, que crean un paño continuo de vidirio.

