
El estudio de arquitectura A-cero, dirigido por Joaquín Torres y Rafael Llamazares, presenta un nuevo proyecto A-cero Tech de dos viviendas pareadas unifamiliares, de 190,72 m2 y 198,04 m2. Situadas en el Noreste de Madrid se distribuyen en dos niveles: planta baja y planta alta.
CROQUIS


SECCIONES

ALZADOS


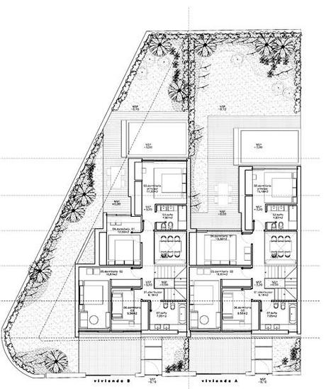
PLANTA BAJA
La planta baja cuenta con 101,88 m2 en el modelo A y 106,96 m2 en el modelo B. Ambas se distribuyen en este nivel en: un hall de entrada-distribuidor, escalera de acceso a la planta alta, aseo de cortesía, garaje con capacidad para dos vehículos, lavadero, cuarto de instalaciones y salón-comedor con porche. En el exterior encontramos sendas terrazas y accesos peatonales y rodados.

PLANTA ALTA
Nos encontramos ante una planta alta de 88,848 m2 en el modelo A y de 91,08 m2 en el modelo B, dedicados al uso privado. Está compuesta en ambos casos por: un distribuidor, un dormitorio principal con cuarto de baño propio, tres dormitorios y un segundo cuarto de baño.

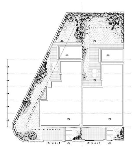
PLANTA CUBIERTA
En ambas viviendas la planta cubierta no es practicable.

EXTERIORES


El acabado de la fachada está compuesto por placas de cemento reforzado en color blanco y gris oscuro, y paneles de vidrio negro lacado.

Los diferentes planos crean un juego de volumetrías que dota de fuerza al porche y al conjunto de la fachada.

