
El estudio A-cero presenta un nuevo proyecto de diseño para un edificio residencial ubicado en la capital de +1.475m2, divididos en planta sótano, planta baja, planta alta y planta bajocubierta.
ALZADOS


SECCIONES

EMPLAZAMIENTO | PLANTA CUBIERTA

PLANTA SÓTANO
Este nivel de 400m2 está distribuido en vestíbulo, ascensor, lavandería, aseos, zona de personal, salas de reunión, comedor, cocina, cámaras, despensa, cuartos de basura y cuartos de instalaciones. Cuenta con un porche de entrada y acceso rodado.

PLANTA BAJA
En la planta baja, de +360m2, encontramos un hall, escalera, dos distribuidores y un total de 15 dormitorios en suite con sus respectivos cuartos de baño. Cuenta también este nivel en el exterior con un acceso peatonal y peatonal adaptado.

PLANTA PRIMERA
En una superficie similar a la de planta baja, nos encontramos con una idéntica distribución de engloba desde el dormitorio nº16 hasta el 32. Todos ellos igualmente cuentan con cuarto de baño propio en suite.

PLANTA BAJO CUBIERTA
En una superficie de 345m2 encontramos dormitorios del 33 al 45 también en suite.

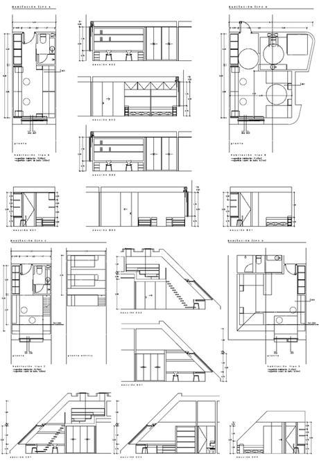
HABITACIONES TIPO
Se distinguen tres tipos de dormitorios, habitación tipo A de 15,68m2 con cuarto de baño de 2,82m2; habitación tipo B de 21,45m2 con cuarto de baño de 9,31m2 y habitación tipo C de 20,79m2 con cuarto de baño de 2,82m2.

VISTAS

Respetando la arquitectura original del edificio se crea una nueva cubierta escultórica donde los materiales más destacados son los paneles de aluminio en tono oscuro y de cemento reforzado en tono blanco, y vidrio negro.

La monocromía lograda con los panales de aluminio y el tono del vidrio se rompe gracias a una serie de elementos escultóricos que caen verticalmente sobre la fachada de manera irregular, en un juego de planos y ángulos salientes.

Las fachadas laterales guardan un diseño más sobrio que otorga una apariencia robusta de bloque al edificio.

Se potencia el juego entre elementos y materiales en la fachada con una iluminación led lineal que remarca separaciones como la entrada principal del edificio.

VISTA INTERIOR
Al interior se traslada el contraste de tonalidades visto en la fachada con un mobiliario en color blanco y negro principalmente propuesto en madera lacada efecto brillo e iluminación led.

