
Hoy el estudio de arquitectura A-cero, dirigido por Joaquín Torres y Rafael Llamazares presenta un nuevo proyecto de vivienda unifamiliar A-cero Tech de 350m2 ubicado en México. La vivienda se distribuye en dos niveles, planta baja y planta alta.
CROQUIS

ALZADOS

SECCIONES

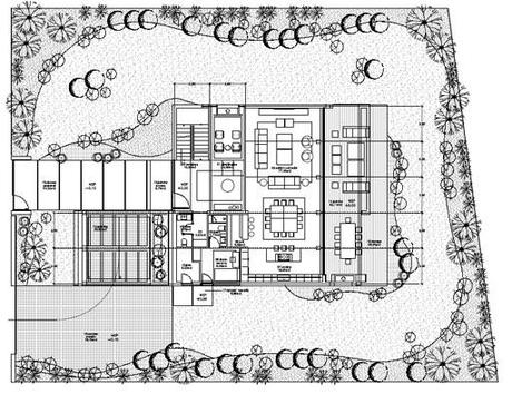
PLANTA BAJA
En planta baja encontramos el acceso a la vivienda. Este nivel de más de 180m2 cuenta con las principales zonas de uso común. Su superficie se distribuye en: distribuidor, escalera, ropero, aseo de cortesía, salón comedor de más de 77m2 con porche de 42m2, bar, cocina de 19m2, dormitorio de servicio con cuarto de baño y cuarto de instalaciones. En el exterior observamos un porche de acceso a la vivienda, una pérgola aparcamiento con capacidad para guardar dos vehículos, una terraza de 28m2 y tres accesos: peatonal, rodado y de servicio.

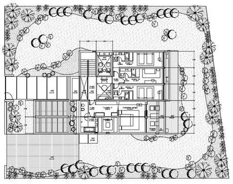
PLANTA ALTA
En planta alta encontramos las zonas nobles de esta vivienda, distribuidas en una superficie de 169m2. Existen dos áreas diferenciadas en este nivel, divididas por una pasarela que comunica con dos distribuidores. En una de ellas encontramos en dormitorio principal de más de 25m2 con hall, cuarto de baño de 12m2, dos vestidores de 10m2 y un porche de 11m2. En el otro área se sitúan tres dormitorios en suite (con cuartos de baño de 4m2) de 19,5m2, 15m2 y 18m2 respectivamente.

PLANTA CUBIERTA

VISTA EXTERIOR

En el exterior se alza un volumen ortogonal en cuyas fachas observamos un juego de planos inclinados y volúmenes, que otorgan movimiento y dinamismo al conjunto.

El acabado de la fachada se realiza en paneles de cemento reforzado color blanco y vidrio negro, utilizado para crear continuos paños acristalados y para marcar la verticalidad/horizontalidad de determinados vanos.

El porche aparcamiento surge como una prolongación de la propia fachada, siguiendo las líneas y el diseño del conjunto.

