
El estudio de arquitectura A-cero, dirigido por Joaquín Torres y Rafael Llamazares, presenta un nuevo proyecto de vivienda unifamiliar de más de 320m2 construidos dividida en tres niveles, en un municipio al sur de Barcelona.
CROQUIS

ALZADOS

SECCIONES

PLANTA SÓTANO
Este nivel cuenta con una superficie útil cercana a los 90m2, repartidos en un garaje con capacidad para dos vehículos cuarto de instalaciones, trastero, vestíbulo, escalera, despensa y lavadero. Accedemos desde el exterior a la planta sótano mediante una rampa de acceso al garaje de 65m2.

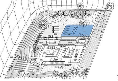
PLANTA BAJA
En el interior de este nivel de 110m2 construidos encontramos las principales zonas de uso común tras el hall y un acceso de cortesía. Estos son el salón-comedor de 45m2 y la cocina de 19,5m2. Distinguimos en el exterior una marquesina de acceso a la vivienda y distintos porches para en la entrada, salón y cocina. En planta baja también encontramos en el exterior el acceso peatonal a la vivienda y una terraza de 44m2 con piscina de 27m2.

PLANTA ALTA
En este nivel de 80m2 útiles encontramos las estancias más privadas de la vivienda. Un distribuidor nos conduce al dormitorio principal con vestidor y cuarto de baño propio (33m2 en total), y a un vestíbulo. Este último es el acceso a dos dormitorios de 14m2 cada uno, que comparten un cuarto de baño. El dormitorio principal cuenta con porche propio y los dormitorios secundarios comparten otro.

PLANTA CUBIERTA

VISTAS DEL EXTERIOR
El exterior de la fachada responde a un diseño orgánico de líneas rectas y planos inclinados que forman diferentes volúmenes, dando lugar a un conjunto escultural que se alza imponente.

Para el acabado de la fachada se han utilizado muros de hormigón teñidos de color oscuro y texturizados con geometrías regulares, logrando así una impresión de acabado pétreo en planta baja. La planta alta una superior mucho más escultórica, se distingue por su acabado en color blanco.

Tanto en planta baja como en planta alta los grandes paños acristalados crean una continuidad entre el interior y el exterior de la vivienda, especialmente en planta baja donde las zonas comunes se comunican con la terraza y su entorno.

Las fachadas laterales forman un conjunto de volúmenes donde se potencia la verticalidad gracias al juego de planos y los acabados de la fachada.


VISTA INTERIOR
El interior cuenta con una gran riqueza espacial gracias a las diferentes alturas y a las particulares volumetrías de algunas estancias, buscando la continuidad y los espacios diáfanos que conecten con el exterior

