
El estudio de arquitectura A-cero, dirigido por Joaquín Torres y Rafael Llamazares, presenta un proyecto de interiorismo para una vivienda unifamiliar en Pozuelo de Alarcón, Madrid. En el post de hoy os mostraremos los diseños correspondientes a las zonas de uso común de esta vivienda.
ESCALERA PRINCIPAL
Secciones

Vista
Esta escalera se convierte en uno de elementos principales de la vivienda. En el exterior puede apreciarse desde la lámina de agua situada en la entrada. La escalera está realizada en madera y cuenta con paneles de vidrio que cumplen una doble función: estos elementos de seguridad sufren diferentes cortes diagonales convirtiéndose a su vez en elementos escultóricos que acompañan la estructura.

En esta zona donde el principal acabado es la madera, han sido emplazados troncos escultóricos tanto en el interior como en el exterior de la vivienda, creando una sensación de reflejo.

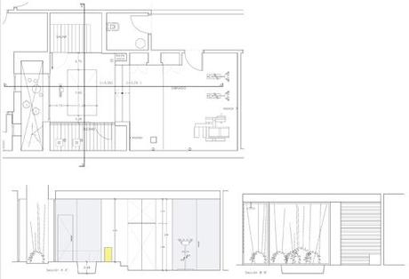
BODEGA / SALA DE CINE
Secciones

Vistas
Situada en planta sótano, la bodega funciona al mismo tiempo como sala de cine. Se ha creado en este espacio un banco de hormigón visto a modo de grada (mismo material en el que están acabadas las paredes), integrado en la arquitectura dentro de un pequeño foso. Frente a los bancos observamos las mesas de la colección Ambae. Detrás de este banco encontramos un patio inglés tras un gran ventanal.

La bodega cuenta a su vez con una barra de bar y una encimera para catas. En el techo queda alojado una lona plegable y un proyector. En cuanto a la iluminación, destacamos las tiras de luz led en paredes y techo, y los puntos de luz dentro del bodeguero que hace que las botellas queden retroiluminadas.

GIMNASIO & SPA
Secciones

Vistas
El gimnasio y la zona de spa se sitúan también en la planta baja. La sala de gimnasio es un espacio diáfano con acabado en color blanco en paredes y techo, y suelo de madera.

La zona de spa esta pensada para el uso compartido. Cuenta con una piscina jacuzzi para dos personas, dos duchas y una sauna con capacidad para dos.

SALÓN COMEDOR
Secciones

Vistas
En la planta baja nos encontramos el salón y comedor. Estos espacios quedan diferenciados por la creación de una doble altura. El comedor está situado en una cota inferior al comedor (50cm) donde encontramos una chimenea de etanol forrada en DM y un diferente acabado del espacio. En este caso, observamos un suelo de piedra empleado para dar continuidad a la piedra Travertina del exterior.

Entre el salón (acabado en madera) y el comedor (acabado en piedra) un mueble aloja un televisor con un sistema rotatorio de 180º.

El mobiliario empleado está disponible en nuestro Showrrom de A-cero in. Se han propuesto para estas estancias los sofás Ace, la mesa Slimo en vidrio oscuro, la esfera de alabastro iluminada, la mesa Capri en pie de acero inoxidable, poufs forrados en tela clara y las lámparas de esferas colgantes.

DESPACHO
Secciones

Vista
Al igual que en el resto de la vivienda, en el despacho tiene una importancia muy relevante el disfrute de la vista exterior. Por ello la mesa está situada de forma estratégica para recibir siempre la iluminación proveniente del ventanal. La cajonera y la mesa se realizan en madera lacada en negro brillo, con un diseño que continúa por la pared y techo (dejando espacio para la colocación de tiras de luz led a modo de falso techo).

COCINA
Sección

Vista
La cocina se sitúa en planta baja. Las encimeras y armarios comparten un acabado en Krion. Los electrodomésticos cuentan con un acabado cromado, a juego con el espejado de la campana extractora que refleja el paisaje exterior.

MOBILIARIO EXTERIOR
Secciones

Vistas
Todos los mobiliarios que presentamos están inspirados en el arte japonés del Origami o papiroflexia, que se sustenta en el doblado de papel para obtener diferentes formas, y están realizados en resina de polietileno de alta calidad. En la siguiente imagen, a los pies de la piscina encontramos dos hamacas, y a cada uno de sus lados una mesa exterior, ambas del modelo rest, y diseñadas por A-cero in para Vondom.

En la próxima imagen podemos ver un sofá chaiselonge y una mesa de centro modelo Rest de Vondom. Este sofá es modular, permitiendo variar el número de plazas. Tras este mobiliario presentamos una mesa y sillas también modelo Rest. para Vondom. La mesa, tanto para exterior como interior, presenta una forma exclusiva y distintiva.

ZONA CHILL OUT
Secciones

Vistas
Nos encontramos de nuevo con el sofá chaiselonge y la mesa de centro modelo Rest de Vondom. Tras la mesa, vemos unas lámparas de suelo modelo Bubble disponibles en varios tamaños. También apreciamos las sillas modelo Phantom y la Barra de bar de la colección Fiesta de Vondom. La barra está formada por líneas simples y funcionales y ofrece la posibilidad de usarse como una pieza única o de forma modular, permitiéndonos formar distintas combinaciones. A los lados de la barra, podemos ver los maceteros de la colección Alma. Por último, el pavimento de la estancia está terminado en madera artificial.

