
El estudio de arquitectura A-cero dirigido por Joaquín Torres y Rafael Llamazares presenta un proyecto de reforma de un Boungalow en un exclusivo hotel situado en la isla de Lanzarote. La estancia tiene una superficie total de 300m2, divididos en dos niveles.
CROQUIS



SECCIONES

ALZADOS

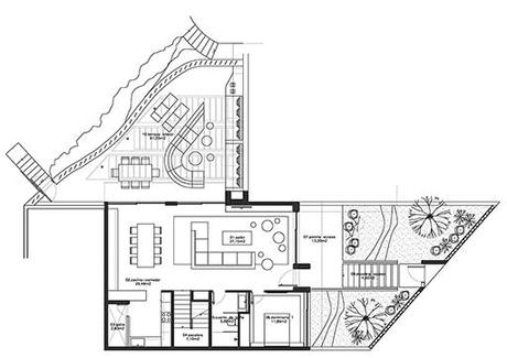
PLANTA BAJA
El acceso a la vivienda se realiza a través de un salón, con una superficie de 37,15m2. Junto a éste encontramos un espacio dedicado al comedor y la cocina, a la que se le ha adherido un pequeño patio. También se presenta un dormitorio de 11,86m2, y un aseo de cortesía.
Además, el boungalow cuenta con un porche de acceso de más de 13m2 y una terraza lateral, donde podemos encontrar un comedor y una sala de estar exterior.

PLANTA ALTA
Este nivel, de 114m2 de superficie está dedicado exclusivamente a zonas de uso privado. Podemos localizar un dormitorio principal en suite de 21,40m2 con vestidor y terraza, un dormitorio infantil, un dormitorio doble con salida a una segunda terraza de 29m2, y un aseo común para las dos últimas estancias.

PLANTA CUBIERTA

IMÁGENES ORIGINALES






PROPUESTA A-CERO
EXTERIORES
La entrada a la vivienda viene dada por unas escaleras con balaustradas de vidrio, que nos conducen al porche de acceso. Sobre éste podemos ver la terraza del dormitorio doble del nivel superior, protegida también por paneles de vidrio.

En la terraza lateral, de 61,55m2 y cubierta por una pérgola, podemos encontrar una mesa de comedor modelo Capri con sillas modelo Rest a su alrededor. Tras estas piezas vemos un sofá modular modelo Kumi y un sofá en linea con la pared. Como elementos decorativos ubicamos los maceteros Alma. Todo el mobiliario mostrado está disponible en el Showroom de A-cero in.

En la siguiente imagen podemos observar la terraza del dormitorio principal y la frontera de la vivienda, marcada por un muro discontinuo a base de láminas inclinadas.

INTERIOR
En la siguiente estancia localizamos dos espacios. Un primer espacio dedicado al comedor, donde encontramos el mismo mobiliario de comedor que en el exterior, con unas bolas de A-cero in sobre la mesa. En el segundo espacio, dedicado al salón, podemos ver un sofá modular en color gris oscuro.
Hay que destacar también los amplios ventanales, que a través de los estores que los visten, se logra suavizar la entrada de luz natural, pero sin restar visibilidad.

