
El estudio de arquitectura A-cero, dirigido por Joaquín Torres y Rafael Llamazares, presenta la reforma integral de una vivienda unifamiliar situada al Sur de Madrid de 585,12 m2 construidos, distribuida en: planta sótano, planta baja, planta primera y planta bajo cubierta
CROQUIS





ALZADOS
Alzados estado anterior a la reforma:


Alzados tras la reforma de A-cero:


SECCIONES

En esta reforma se ha cambiado la distribución interior de la vivienda en todos sus niveles. A continuación os mostramos los planos antes y después de la propuesta de reforma A-cero.
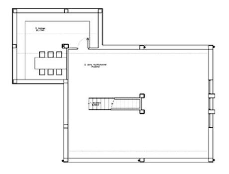
PLANTA SÓTANO
La planta sótano cuenta con una superficie total construida de 114,66 m2.
Estado anterior a la reforma:

Tras la reforma de A-cero:
Se distribuyen 106,83 m2 útiles en una amplia zona multifuncional, una bodega y las escaleras de acceso.

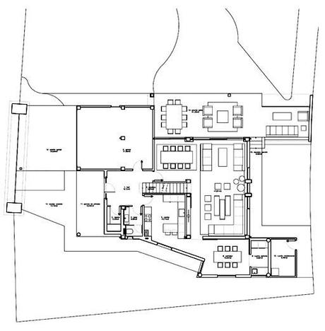
PLANTA BAJA
La planta baja cuenta con una superficie total construida de 261,08 m2.
Estado anterior a la reforma:

Tras la reforma de A-cero:
Este nivel de 224,76 m2 útiles cuenta con un porche de entrada a la vivienda, cuyo interior queda distribuido en: hall de entrada, ropero, aseo de cortesía, escalera, cocina, garaje con porche, salón-comedor con porche, cuarto de plancha y cuarto de instalaciones.

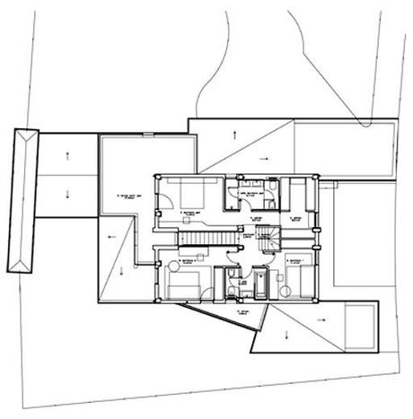
PLANTA PRIMERA
La planta primera cuenta con una superficie total construida de 121,05 m2.
Estado anterior a la reforma:

Tras la reforma de A-cero:
La planta primera está dedicada a las zonas de uso privado, se divide en: un hall principal, un dormitorio principal con cuarto de baño y terraza, dos dormitorios, un segundo cuarto de baño y una terraza. Todo ello suma una superficie de 100.08 m2 útiles.

PLANTA BAJO CUBIERTA
La planta bajo cubierta cuenta con una superficie total construida de 88,33 m2 (65,21 m2 útiles).
Estado anterior a la reforma:

Tras la reforma de A-cero:
En este nivel encontramos una buhardilla de 62,86 m2 y dos terrazas que suman 2,60 m2.

PLANTA CUBIERTA
Estado anterior a la reforma:

Tras la reforma de A-cero:

EXTERIORES
Imágenes previas a la reforma:




Tras la reforma de A-cero
El nuevo diseño de fachada propuesto por el estudio mantiene la estructura original de la vivienda, añadiendo dos pequeñas ampliaciones.

El nuevo acabado se compone de ladrillo visto pintado en color blanco y lamas metálicas oscuras que ocultan las cubiertas inclinadas de la estructura original, buscando formas geométricas más puras.


Para marcar la uniformidad de los huecos de ventanas se han utilizado revestimientos de vidrio lacado negro.

