
Hoy el estudio de arquitectura de A-cero, dirigido por Joaquín Torres & Rafael Llamazares, presenta un proyecto de vivienda unifamiliar A-cero Tech totalmente personalizado, en el Noroeste de Madrid. Esta vivienda modular cuenta con una superficie total construida de 250,76m2 distribuida en dos niveles.
CROQUIS







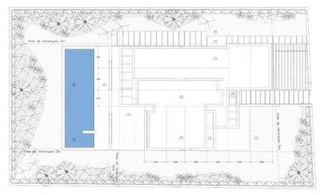
EMPLAZAMIENTO

SECCIONES


ALZADOS

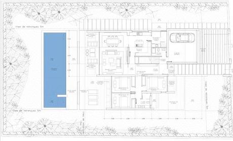
PLANTA BAJA

En este nivel de 190,41m2 encontramos las zonas de uso común de la la vivienda: el hall de entrada de 12,55m2, un aseo de cortesía, un salón comedor de 38,48m2, la cocina de 16,90m2, un cuarto de planchado y una escalera de acceso. Además de las zonas públicas, cuenta con tres dormitorios (de 12,04m2, 11,97m2 y 11,15m2) y un cuarto de baño de 5,75m2. El garaje, de 28,78m2 con capacidad para dos vehículos, también esta localizado en esta planta.
En el exterior de la vivienda, formando parte de este nivel, observamos una terraza de 21,59m2 en la zona de acceso y una segunda terraza de 35,65m2 junto a la zona de la piscina, de 47,94m2.
En el exterior de la vivienda, formando parte de este nivel, observamos una terraza de 21,59m2 en la zona de acceso y una segunda terraza de 35,65m2 junto a la zona de la piscina, de 47,94m2.
PLANTA ALTA

Este nivel está dedicado exclusivamente al uso privado, en concreto, al dormitorio principal. Un hall de 4,56m2, precedido por las escaleras de acceso, desemboca en el dormitorio principal (de 19,37m2) que cuenta con un vestidor de 6,26m2 y un cuarto de baño de 12,46m2.


Esta vivienda cuenta con un acceso rodado de 31,79m2 y un acceso peatonal de 18,74 m2 a la misma.

Una superficie de 28,42m2 en el exterior está dedicada en exclusiva al disfrute de la piscina, de 47,94m2.

Entre los elementos dispuestos en el exterior distinguimos: el porche garaje de 4m2 aproximados, un porche salón comedor de 4,61m2, una pérgola de 3,71m2 compartida por dos dormitorios, una pérgola de 4,5m2 para el dormitorio restante y una última pérgola de 14,14m2 de salón comedor.

Los materiales utilizados en los acabados son: paneles de cemento reforzado en blanco, paneles de vidrio negro lacado, y vidrio negro.

Interiorismo de A-cero In: c/Castelló nº 66, Madrid.
Vota el Blog A-cero para los premios Bitácoras 2012

