
Hoy el estudio de arquitectura A-cero, dirigido por Joaquín Torres, presenta un nuevo proyecto de vivienda unifamiliar de 1.613,74m2 situada en el Norte de África, dividida en tres niveles: planta sótano, planta baja y planta primera.
CROQUIS

EMPLAZAMIENTO

SECCIONES


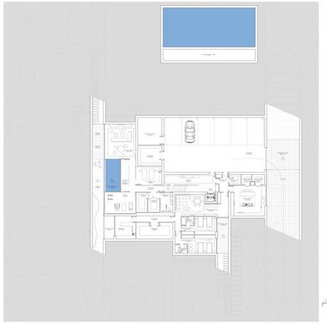
PLANTA SÓTANO
Este nivel comprende una superficie de 664,21 m2 dedicada en su mayoría a albergar cuartos técnicos, de almacenaje y zonas de uso común. Cuenta también con un aparcamiento con capacidad para seis vehículos, hall, ascensor, una zona de gimnasio y spa (compuesta por el gimnasio, sauna, baño turco, sala de camilla, y piscina interior de 14,35 m2), cuarto de juegos y zona de servicio. La zona de servicio se divide en hall, cuarto de limpieza, cocina, dos cuartos frigoríficos, sala de estar, dos dormitorios con cuarto de baño, distribuidor, almacén, lavadero y cuarto tendedero. La planta sótano también cuenta en el exterior con dos patios, un patio de servicio y el acceso al aparcamiento.

PLANTA BAJA
Este nivel de 714,84 m2 está dividido en zonas de uso común y estancias más privadas. Entre las zonas de uso común destaca el hall, escaleras, distribuidor, aseo de cortesía, la cocina de 52 m2, despensa, el comedor de 43 m2 con porche, sala de lectura-biblioteca, sala de estar principal de 82 m2 con porche, una sala de estar familiar de 35 m2, majilis, una terraza exterior de 400 m2 con piscina exterior de 122 m2 y una pérgola barbacoa de 53 m2 en el jardín.
Las zonas de uso privado las componen. un dormitorio con cuarto ropero y cuarto de baño, y tres dormitorios de 35 m2 con cuarto de baño, que comparten una pérgola.

PLANTA ALTA
La planta alta dedica sus 234,69 m2 a las estancias relacionadas con el dormitorio principal, nos encontramos por tanto con el propio dormitorio de 32 m2 con un porche de 46 m2, un vestidor guardarropa de 31 m2, cuarto de baño de 23 m2, una sala de estar de 18 m2 y un office de 20 m2 con porche.

EXTERIOR

En la fachada se observa un juego de volúmenes caracterizado por la ausencia de líneas curvas. Las líneas puras, rectas y los planos inclinados son los protagonistas en el diseño de esta vivienda.

Debido a su cálida ubicación se abren amplios ventanales para que la luz natural se abra camino hacia en interior de la vivienda.




INTERIOR
El interiorismo de la la vivienda está relacionado con su diseño exterior, Las composiciones basadas en líneas rectas y diferentes planos se proyectan también en las estancias del interior.

Varias de las zonas de uso común, como la sala de estar o este distribuidor, comparten una doble altura con la planta alta de la vivienda.

