
Hoy el estudio de arquitectura A-cero, dirigido por Joaquín Torres y Rafael Llamazares presenta un nuevo proyecto de vivienda unifamiliar ubicado en una exclusiva isla del Caribe. La vivienda, con una superficie construida cercana a los 1.500 m2, se divide en planta sótano, planta baja y planta primera.
CROQUIS

SECCIONES

ALZADOS

MAQUETA



PLANTA SÓTANO
Este nivel de casi 600 m2 alberga en su interior un hall, cuartos de servicio, almacén y bodega. Cuenta con una amplia zona abierta cubierta destinada al aparcamiento y las salas de maquinaria para la piscina.

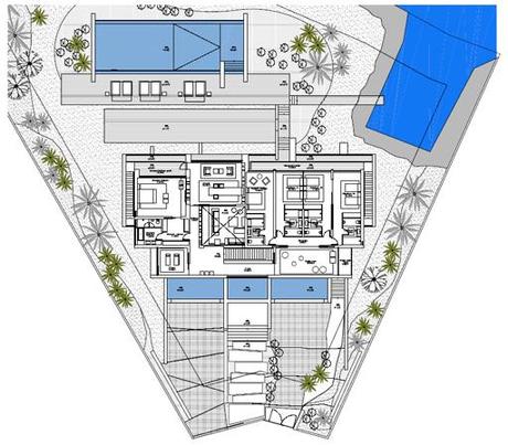
PLANTA BAJA
Este nivel de 472 m2 aproximadamente cuenta en su interior con dos hall, un salón familiar de 65 m2, un comedor de 27 m2, un estar de 22 m2, un salón de 12 m2, ropero, aseo de cortesía, una cocina de 32 m2, lavadero de 12 m2, y dos dormitorios de servicio con una cocina. Puede accederse al interior mediante tres entradas con porche. En el exterior nos encontramos con un acceso peatonal y dos para vehículos, dos láminas de agua de 20 m2, el acceso de servicio, dos escaleras exteriores, dos terrazas, de 95 m2 y de 115 m2, y un embarcadero.

PLANTA PRIMERA
En esta primera opción, la distribución de este nivel de aproximados 400 m2 se compone de: un hall, biblioteca, estudio, un dormitorio principal de 50 m2 con vestidor, cuarto de baño y porche de 10 m2, un gimnasio de 13 m2, sala de juegos de aproximados 28 m2 con porche de 5m2, un cuarto de invitados en suite de más de 30 m2, y tres dormitorios con cuarto de baño propio que rondan las mismas dimensiones, que comparten a su vez otro porche de 12,16m2.

PLANTA CUBIERTA

VISTAS EXTERIORES
El diseño de esta vivienda se basa en dos puntos fundamentales: la privacidad y las vistas al mar. Toda la vivienda cuenta con numerosos miradores aprovechados en grandes paños de vidrio en la fachada, porches, volúmenes y terrazas enfocados hacia la bahía.

El diseño ortogonal y la combinación de volúmenes favorecen la creación de los espacios antes mencionados para el disfrute del entorno. Los acabados propuestos son materiales naturales como la piedra en muros exteriores, y la madera y piedra natural blanca en la fachada.

La complicidad con el entorno se traduce en otros elementos como la piscina infinita, que se proyecta hacia la bahía terminando en una breve cascada que parece fusionarse con el mar.

El otro elemento principal de la vivienda es la privacidad. El acceso principal juega con diferentes volúmenes para ocultar el interior de la vivienda de las miradas ajenas.

Se convierte pues en un bloque robusto que protege la intimidad de los propietarios.

VISTAS INTERIORES
Se propone un interiorismo acorde con el entorno y el diseño de la vivienda. Se plantean espacios de gran amplitud, donde circule la luz natural recorre los espacios gracias a los grandes ventanales de la fachada.

Se plantean acabados basados en la utilización de materiales naturales como la piedra y la madera, en tonos cálidos.


