
El estudio de arquitectura de A-cero dirigido por Joaquín Torres y Rafael Llamazares, presenta un proyecto de vivienda unifamiliar de 2.870,70 m2 en un exclusiva urbanización de Cádiz. La vivienda está dividida en planta sótano, planta baja, planta alta y planta ático.
CROQUIS




SECCIONES


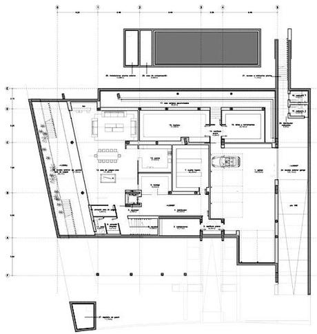
PLANTA SÓTANO
En este nivel de 1.078,52 m2 podemos encontrar los diferentes cuartos técnicos y almacenaje de la vivienda como: el cuarto de instalaciones, ropero, almacén de limpieza, bodega, trastero, cuarto de útiles y herramientas, sala de ventana escamoteable y ,en el exterior, la sala de instalaciones correspondiente a la piscina. Cuenta también con un garaje con capacidad para cuatro vehículos, cocina, vestuarios y un gran espacio formado por la sala de juegos y cine, con almacén y porche propio.

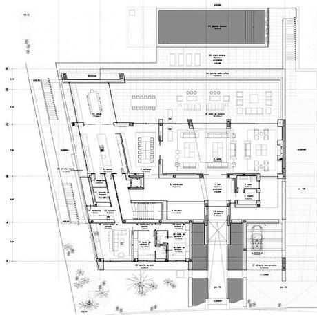
PLANTA BAJA
Este nivel de 1.167,95 m2 está dividido en dos zonas diferenciadas, la vivienda en sí y la zona de servicio. En la vivienda distinguimos el hall, ropero, aseo de cortesía, distribuidor, salón, comedor, salón de invierno, cocina, office y despensa. La zona de servicio está compuesta por un almacén de limpieza, lavadero, cocina-estar de servicio, distribuidor y dos dormitorios con dos cuartos de baño de servicio.
En el exterior se observan diferentes porches como el porche de acceso, del salón-office, el porche de la cocina, de servicio y del aparcamiento. Además en este nivel se encuentra la piscina exterior de 80m2.

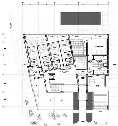
PLANTA ALTA
La planta alta de 576,95 m2 alberga las zonas más privadas de la vivienda. Aquí encontramos diferentes vestíbulos que nos llevan hasta el dormitorio principal (con dos vestidores-cuarto de baño propios, porche y pérgola exterior), cuatro dormitorios (uno con porche) con vestidor y cuarto de baño propios, un despacho y un acceso al mirador.

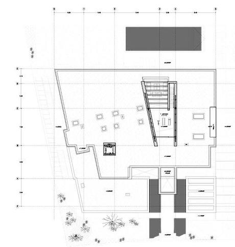
PLANTA CUBIERTA-ÁTICO
En la planta cubierta se ha habilitado un espacio de 47,28 m2 para albergar un gimnasio.

EXTERIORES
La fachada de esta vivienda está acabada en piedra natural color blanco y vidrio negro y transparente en ventanales, para dotar de una gran luminosidad al interior dada su orientación en la costa gaditana.

En planta baja el cristal escamoteable abre el salón comedor al exterior, conectando este espacio con la terraza y la zona de la piscina. En la planta alta el un panel continuo de vidrio transparente se utiliza como elemento de seguridad en los diferentes porches.

Se trata de un diseño donde predominan las volumetrías y la verticalidad de las formas. Existe un juego de planos en todo el exterior de la fachada.

La entrada contiene un diseño inspirado en una puerta China del siglo XVI acompañada de muros que marcan aún más su verticalidad.



INTERIORES
En el interior los espacios diáfanos son protagonistas, donde juega un papel muy importantes determinadas zonas a doble altura como la sala de estar.

Los amplios ventanales inundan de luz natural el interior, acabado en color blanco, donde observamos dos obras de Mercedes Rodríguez sobre una chimenea de diseño horizontal.

Se crean láminas de agua en diferentes espacios exteriores como conjunto del paisajismo de la vivienda.

