
Hoy el estudio de arquitectura A-cero, dirigido por Joaquín Torres y Rafael Llamazares, presenta un proyecto para una vivienda unifamiliar en Rusia.
Se trata de una vivienda con una superficie total de 1.360m2, divididos en dos niveles: planta baja y planta alta. Cuenta además con una edificación secundaria con una superficie de casi 100m2 en la que se localiza la piscina.
CROQUIS

EMPLAZAMIENTO

SECCIONES


ALZADOS

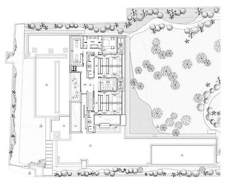
PLANTA BAJA
En el nivel inferior, de 1.018m2 de superficie, se ubican las zonas de uso común, las zonas de servicio y de invitados y, las zonas de ocio. Como zonas comunes podemos localizar un hall, un aseo de cortesía, una cocina de 50m2 con porche, un comedor de 40m2, un salón de 94m2 con porche, una sala multifuncional de 47m2, una parking con espacio para 6 vehículos, una sala de máquinas, un almacén y dos aseos. En la zona de invitados encontramos un cuarto de en suite con una superficie total de 32m2. Respecto a la sala de ocio podemos ubicar un sala de masajes, una sala de boxeo, un gimnasio, una sauna, una sala de vestuario y, un área chill out. Por último, en la zona de servicio encontramos 4 dormitorios de entre 11m2 y 14m2, siendo dos de ellos en suite, y los dos restantes compartiendo cuarto de baño. Además, podemos ver la piscina, de 66m2 con un perímetro de 42m2.
Como zonas abiertas no cubiertas se pueden localizar tres patios interiores, de 24m2, 14m2 y 3m2.

PLANTA ALTA
La planta alta, de 385m2, alberga las zonas de uso privado de la vivienda. Podemos localizar en este nivel un hall, un salón familiar de 27m2 con porche, el dormitorio principal en suite de 55m2 con vestidor y porche, cuatro dormitorios de 17m2 con vestidores de 5m2, y un cuarto de baño para cada dos habitaciones, con instalaciones para ambas.

PLANTA CUBIERTA

EXTERIORES

En cuanto a materiales exteriores, la vivienda está terminada en piedra natural combinada con vidrio negro.


Podemos observar como la mayoría de la planta baja está terminada en vidrio negro, integrándola así con el exterior.

En el porche exterior se puede localizar un conjunto de mobiliario en color blanco de la Colección Rest, diseñada por A-cero para Vondom.


Líneas limpias, volúmenes rotundos y planos inclinados definen esta fachada.

La vivienda dispone también de una zona de estar exterior realizada con pequeños troncos de madera. Además está cubierta por una pérgola y cuenta con una barbacoa.

INTERIORES
En el interior de la vivienda se alterna la piedra y la madera en paredes, siendo el suelo también de madera. Observamos como en este hall se integra la fachada en el interior, mediante el uso de la piedra. Se pueden localizar también paneles colgantes que aportan luz lineal y una butaca Trek, disponible en A-cero in. Se destaca de este espacio las escaleras realizadas por láminas de madera adheridas a la pared y el patio del nivel superior que queda al descubierto por su acabado en vidrio.
Como elementos decorativos se pueden localizar una escultura realizado en acero corten y un cuadro.

En el salón se utiliza también la piedra en ciertas zonas de las paredes, llevando de nuevo a una integración del exterior. Hay que destacar de este espacio diáfano su amplia altura ocupando la planta baja y la alta. Se puede localizar una amplia chimenea sobre la que reluce un cuadro de Mercedes Rodriguez, una zona de almacenamiento de leña, un sofá en tonos grises y una mesa de centro lacada en negro. Respecto a la iluminación encontramos tiras de luces led en un foseado en el falso techo.

