
El estudio de arquitectura A-cero, dirigido por Joaquín Torres y Rafael Llamazares, presenta una nueva propuesta de fachada para la vivienda unifamiliar ubicada en Sevilla.
Os recordamos que cuenta con una superficie total de 720 m2, distribuidos en cuatro niveles: planta sótano, primera planta, planta segunda y planta cubierta.
CROQUIS

ALZADOS


SECCIONES


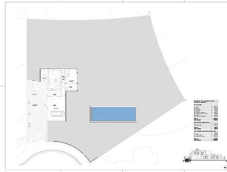
PLANTA SÓTANO
La planta sótano ocupa una superficie total de 122’85 m2. Alberga el garaje, de casi 50 m2, un almacén, un cuarto de instalaciones, un trastero y una habitación de servicio de 30 m2 con su correspondiente cuarto de baño.

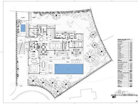
PRIMERA PLANTA
La planta primera incluye varias zonas comunes de la vivienda: despacho, cocina, comedor, estar, salón de más de 60 m2, despensa, ropero, un dormitorio principal, de 25 m2, dos vestidores, dos cuartos de baño, un gimnasio y un cenador de 51’74 m2.

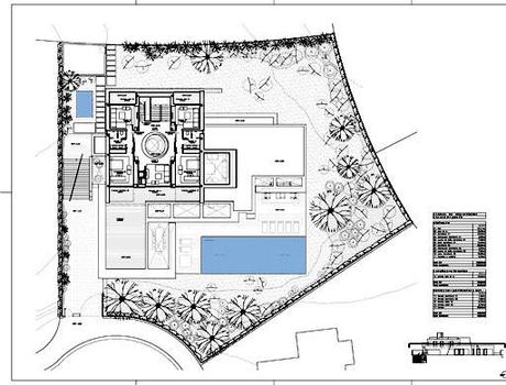
SEGUNDA PLANTA
Este nivel alberga zonas menos comunes de la vivienda. Un amplio hall de 24’21 m2 da paso a dos dormitorios completos de 23 m2 cada uno, que incluyen un distribuidor, cuarto de baño y un estar propios, así como sus correspondientes terrazas. La planta segunda se complementa con una sala de TV, de 15 m2, y las escaleras que dan acceso a la planta cubierta. Todo ello en un total de 187 m2.

PLANTA CUBIERTA
En planta cubierta destaca el planteamiento de un solarium de 124 m2.

NUEVA PROPUESTA DE FACHADA
La nueva propuesta que A-cero presenta para esta vivienda supone sólo un cambio en los acabados de la fachada, estando terminada en piedra natural y vidrio o vidrio negro.
Opción 1
Las formas escultóricas dinamizan la fachada, modernizándola totalmente y ocultando la estructura original de la vivienda. Priman las formas y los volúmenes rectilíneos, con planos seriados y superpuestos, muy geométricos que alivian el carácter fundamentalmente horizontal de la propiedad.

Para esta primera opción se opta por la combinación de vidrio transparente y vidrio negro.

Opción 2
Para la segunda opción podemos apreciar como se ha optado únicamente por vidrio negro, tanto para los ventanales de la vivienda, como para la balaustradas que la rodean.

Se propone el vidrio negro ya que permite una mayor privacidad sin que la entrada de luz natural disminuya.

