
Hoy el estudio de arquitectura A-cero, liderado por Joaquín Torres & Rafael Llamazares, presenta una nueva propuesta para el proyecto de reforma integral en un ático dúplex de 357,16 m2 construidos en Galicia.
CROQUIS

EMPLAZAMIENTO

LOCALIZACIÓN

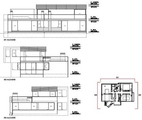
SECCIONES

AALZADOS

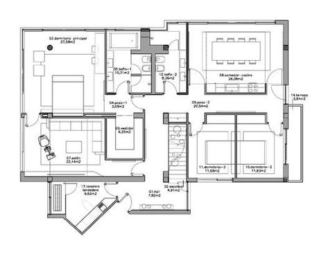
PLANTA BAJA
Tras la reforma este primer nivel de 170,78 m2 queda distribuido en: hall, dormitorio principal, paso-1, cuarto de baño-1, vestidor, salón-comedor, cocina, dos dormitorios, cuarto de baño, lavadero tendedero y una terraza exterior.

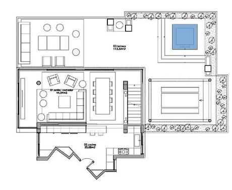
PLANTA ALTA
Accedemos a la planta alta de 182,44 m2, donde encontramos un salón comedor y cocina, con una terraza de 113,32 m2 convirtiéndola en una zona de descanso y disfrute donde podemos disfrutar de una zona chill out y una piscina sobre cubierta.

ANTES DE LA REFORMA DE A-CERO



EXTERIOR
En la terraza de la planta encontramos la zona de chill out con jacuzzi y zona de descanso, donde observamos las butacas Rest, las mesas Slimo en vidrio blanco y los taburetes Ambae; todos disponibles en el showroom de A-cero In en la c/Castelló 66 de Madrid.

INTERIOR
El salón comedor de la planta alta disfruta de unos amplios ventanales que inundan de luz natural este espacio diáfano, donde el color blanco hace ganar luminosidad y amplitud. Se ha creado un falso techo continuo en el que se observa un foseado para crear una la luz indirecta lineal.

En el dormitorio principal un cuadro de Mercedes Rodrígez hace de cabecero que continúa de la pared al techo, rodeado por un foseado de luz.

La cama de matrimonio Capri se ve acompañada de las butacas Trek en gris para contrastar el color blanco. Podemos observar otros elementos como las bolas de acero disponibles en A-cero In.

