
Hoy, el estudio de arquitectura A-cero, dirigido por Joaquín Torres, quiere mostraros una nueva vivienda A-cero Tech, en este caso ubicada en Cádiz. Sobre una parcela de forma rectangular con una superficie de 471 m2 y una ligera pendiente en dirección Norte-Sur, se levanta esta vivienda estructurada en dos niveles, planta baja y planta primera.
EMPLAZAMIENTO

SECCIONES



ALZADOS



PLANTA BAJA

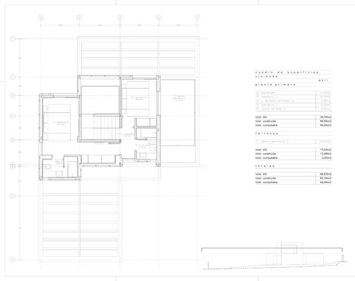
PLANTA ALTA

PLANTA CUBIERTA









En planta baja encontramos un salón-comedor, cocina, lavadero, un dormitorio y un cuarto de baño. En el nivel superior un dormitorio, un baño y el dormitorio principal con su respectivo cuarto de baño. El hall que da acceso a la vivienda comunica directamente con el salón y el distribuidor, permitiendo también el acceso a la cocina.






La vivienda tiene dos zonas claramente diferenciadas por un eje imaginario con orientación Noreste-Suroeste. Una es la zona más noble de la vivienda, con las estancias más privadas y la otra funciona como complemento. La primera posee grandes aberturas para un mejor aprovechamiento de la luz, pudiendo accederse a la terraza a través del salón comedor y también de los dormitorios. En el lado opuesto, estancias comunes como los cuartos de baño, el lavadero o la cocina, con aberturas mínimas limitando la relación entre el interior y exterior.
INTERIORES



Interiormente, se buscan los espacios diáfanos, amplios y luminosos donde la luz natural, moldeada por el blanco dominante de las estancias, es la absoluta protagonista. La fusión entre espacios interiores y exteriores en las estancias más privadas y nobles es patente a través de grandes ventanales y de la terraza superior, pero también se busca en todo momento la conexión entre ámbitos, incluso en las zonas más complementarias.


