
Hoy el estudio de arquitectura de A-cero, dirigido por Joaquín Torres & Rafael Llamazares presenta un nuevo proyecto de interiorismo proyectado en una vivienda unifamiliar en Madrid. Esta, cuenta con 2 niveles (planta baja + planta alta). El cliente contactó con el showroom de A-cero, A-cero In, donde se le propuso un lavado de cara, apostando por un nuevo y fresco mobiliario de marcadas líneas rectas, características de la imagen de este showroom.
CROQUIS


PLANOS PLANTA BAJA
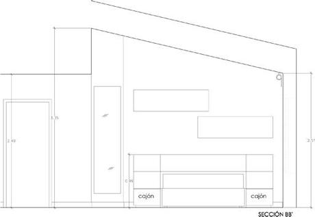
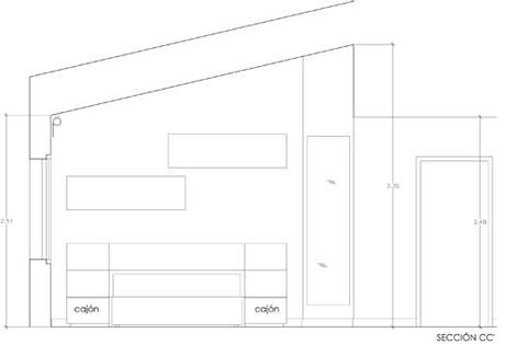
SECCIONES





PLANTA BAJA

PLANOS PLANTA ALTA
ALFOMBRAS

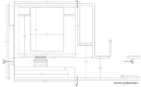
DORMITORIO 1

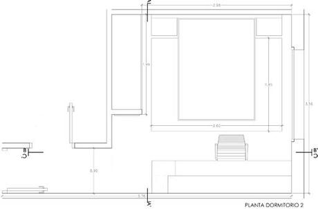
SECCIÓN DORMITORIO II



SECCIÓN DORMITORIO I



ESTADO PREVIO A LA INTERVENCIÓN DE A-CERO










DURANTE LA INTERVENCIÓN DE A-CERO








TRAS LA INTERVENCION DE A-CERO
Antes

Después
Dos consolas en laca blanca modelo Capri enmarcan una zona de paso que se “sella” mediante dos espejos, uno trasero de grandes dimensiones junto con uno de mayor grosor, creando así una ampliación de la estancia

En la zona de estar, se ubican dos sofás modelo ACE en diferentes tonalidades de gris, acabado en terciopelo. Como mesas de centro se escogen las del modelo CSEC en laca blanca acabado en alto brillo, con interior en color plata. Presidiendo la pared una obra en tríptico de la artista Mercedes Rodriguez, en tonos fuego, generando a la estancia mayor calidez.

Tras el sofá ACE, se dispone un aparador modelo CSEC, en laca brillo, combinado en blanco y negro.


Como mesa auxiliar, la mesa modelo CSEC en unas dimensiones más reducidas y con el mismo acabado que las mesas de centro.

Consola de comedor modelo Capri en laca color negro y gris, en la zona de comedor, como complemento ideal de almacenaje para esta estancia.
En al zona de comedor, la mesa Maui combinada junto con las sillas Rest, conforman una de las zonas de más uso de la vivienda.

Presidiendo el salón, un piano colín combinado con un díptico de la artista Mercedes Rodriguez cierran la estancia principal de la vivienda.


Todas las alfombras de seda son un diseño personalizado de A-cero IN.


Chimenea exterior de bioetanol de diseño exclusivo para la propiedad.


Vota el Blog A-cero para los premios Bitácoras 2012

