
Hoy el estudio de arquitectura de A-cero dirigido por Joaquín Torres y Rafael Llamazare, presenta un Masterplan en Cuba. Citar que algunas de las imágenes son recogidas de otras presentaciones genéricas tomadas como referencia de otros proyectos. La presente propuesta tiene como objetivo sentar las bases de diseño para la urbanización, situada en Ciudad de la Havana. Dicha área de actuación consta de una superficie total de 2.206.063 metros cuadrados, y afecta a una longitud de costa de 2.033,40 metros en el lado Norte.

DISTRIBUCIÓN

1-ACCESO A LA URBANIZACIÓN


1-VILLAS
Se ubican en una superficie total de 453.211m2, el 20.54% del área total. Consta de 397 parcelas de entre 1.000 y 1.200m2 en unidades de 410 m2 construidos, 196 m2 útiles + 185 m2 de porches, rodeadas de amplios espacios verdes y zonas de esparcimiento.
Existen villas de gran tamaño que ocupan una superficie de 113.325 m2 , el 5.14% del área total, son 35 parcelas de entre 2.500 y 3.500 m2en primera línea de playa.
-UBICACIÓN

ALZADOS LATERALES Y SECCIONES

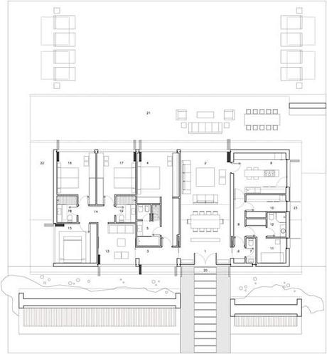
PLANO PLANTA BAJA

PLANO PLANTA CUBIERTA




2-APARTAMENTOS EN BLOQUE
Ocupan 435.471 m2, un 19.74% del área total. Consta de 3.840 unidades en bloques de dos alturas en lo que se pueden encontrar apartamentos de 1 dormitorio con 75m2 de superficie útil, 2 dormitorios de 90m2 de superficie útil o 3 dormitorios 120m2 de superficie útil.
Ubicación


Apartamentos, otra tipología


3-APARTAMENTO EN CASCADA
Constan de una superficie total de 78.176 m2, formado por 300 unidades en bloques de cuatro alturas, con apartamentos de 2 dormitorios con 90m2 de superficie útil y de 3 dormitorios con 120m2 de superficie útil.



4-HOTEL RESORT
Consta de una superficie total de 69.039 m2, donde se ubican 500 habitaciones de 60 m2 útiles cada una.



5-CLUB DEPORTIVO
Consta de una superficie total de 35.336 m2, con un gimnasio de 500 m2y gran variedad de pistas deportivas cubiertas y al aire libre.



-Club de Golf


6-SPA


7-BEACH CLUB
Beach Club I


-Beach club II


8-TERRAZA FLOTANTE


9-MARINA


