
Hoy, el estudio de arquitectura A-cero, dirigido por Joaquín Torres, quiere mostraros una segunda propuesta para el proyecto de realización de un nuevo colegio A-cero Tech ubicado a las afueras de Madrid, sobre una parcela de forma irregular de 11.031 m2 y con un desnivel topográfico considerable que condicionará en gran medida las soluciones a adoptar. Se aprovecha así el desnivel de la parcela para plantear un inmueble semienterrado en su parte más desfavorable.
CROQUIS



EMPLAZAMIENTO

CONCEPTO

En el nivel superior, a cota de la calle clindante, por la que discurre un carril bici que recorre toda la población, se ha creado un acceso peatonal al edificio que desemboca en la planta tercera. El acceso general a la escuela se plantea por la cota más baja. El proyecto se concibe en planta sótano, planta baja y tres niveles en altura, cada uno de ellos destinado a un determinado grado educativo, infantil, primaria y secundaria respectivamente.
SECCIONES

ALZADOS

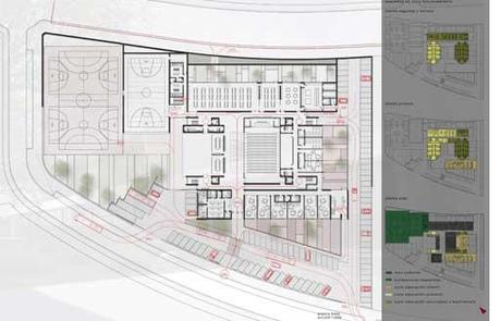
PLANTA SÓTANO

Dentro de los objetivos a conseguir, cabe destacar los siguientes: diferenciación de cada nivel de enseñanza, tanto por su ubicación como por sus accesos, circulaciones y áreas de recreo, centralización de los servicios generales en planta baja, facilitando así el acceso a ellos desde las distintas áreas de enseñanza, la utilización de materiales de alta durabilidad y fácil mantenimiento, la optimización del funcionamiento de las zonas destinadas a circulación rodada, tanto a nivel de accesos, aparcamientos y recorridos de los distintos tipos de vehículos y la incorporación de criterios medioambientales y de sostenibilidad a toda la propuesta.
PLANTA BAJA

PLANTA PRIMERA

PLANTA SEGUNDA

Se complementa el proyecto con un amplio gimnasio cubierto en planta baja y una piscina climatizada bajo el mismo. Este módulo se ha ubicado de forma que pueda funcionar independiente al resto del complejo, permitiendo el acceso desde el exterior del recinto.
PLANTA TERCERA

VISTAS EXTERIORES
Exteriormente se buscan los volúmenes racionales, con gusto por la línea recta y el juego entre módulos y volúmenes que se entrelazan y superponen, siempre adaptando y supeditando el diseño a la función. Unas notas de color destacan en fachada, proporcionándole al proyecto vivacidad y dinamismo, especialmente al tratarse del proyecto para la ejecución de un colegio.



