
El estudio de arquitectura dirigido por joaquín Torres, presenta un nuevo proyecto para un balneario en la sierra de Madrid.
Se trata de la construcción de un centro deportivo en el que predominarán las actividades acuáticas. También se desarrollarán actividades como aerobic, Yoga, Fitness … propias de un gimnasio, completándose con una zona de masajes deportivos. Uno de los objetivos principales del proyecto es conseguir que sea totalmente accesible para personas con cualquier tipo de discapacidad.
ALZADOS



SECCIONES


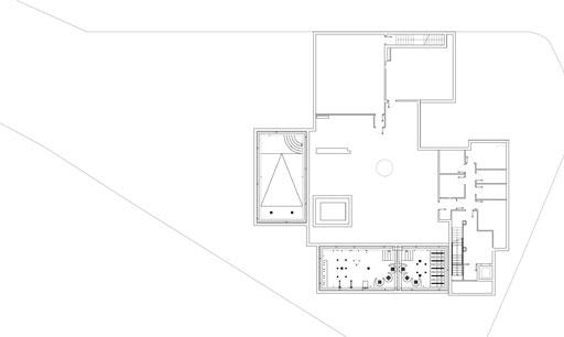
PLANTA SÓTANO

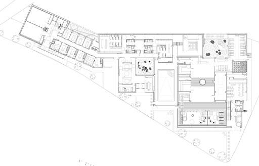
PLANTA BAJA

PLANTA TERRAZA

CROQUIS



El centro contará con tres zonas diferenciadas: Una zona de salas multiusos en las que se desarrollarán actividades como aerobic, fitness, yoga, Una zona de cabinas en las que se realizarán masajes deportivos y recuperación funcional y la zona principal del centro en las que están ubicadas las distintas piscinas y áreas relacionadas con las actividades acuáticas.

El edificio está situado en una parcela s, de forma irregular y de proporción rectangular, tres de sus lados limitan con vías rodadas interiores. Existe un fuerte desnivel entre sus dos lados largos.
El edificio se desarrolla en una única planta con una superficie construida total en dicha planta de 1.382,54m2, utilizando la cubierta como terraza y zona al aire libre para realizar distintas actividades deportivas. Consta también de planta sótano en la que se localizan todas las instalaciones y almacenes, con una superficie construida de 428,53m².
El desnivel existente se soluciona adaptando el edificio a un muro de contención que salva la diferencia de cota entre los dos lados largos, dando acceso al edificio por el lado de la cota más baja. El edificio se desarrolla en torno a unos patios que dan ventilación e iluminación a los distintos espacios, consiguiendo dotar de la mayor privacidad posible a éstos.

El funcionamiento del Centro ha ido determinando el aspecto formal del proyecto. Existen dos zonas que claramente deben separarse, la zona de piscinas y otros espacios relacionados con actividades acuáticas o “zona higienizada” , y la zona de gimnasios, cabinas de masajes, recepción y almacén o “zona no higienizada”. Se utilizan los vestuarios, como elemento separador de zonas, realizando la transición entre “higienizada” y “no higienizada” en el interior de los mismos, apoyando esta transición mediante pediluvios en los accesos a la piscina de ejercicios y al centro acuático deportivo propiamente dicho.

El edificio tiene una proporción longitudinal establecida por la propia parcela. Existe un eje central en el que se sitúa el acceso principal, en el que se encuentra la zona de recepción, despacho administrativo, almacén y vestuarios; todos estos espacios en torno a un patio consiguiendo dividir el edificio en las dos zonas anteriormente descritas, diferenciando también los distintos usos que en este Centro se realizan.

A la izquierda del eje central se sitúa la zona de cabinas para masajes deportivos y de recuperación funcional, que se distribuyen entorno a un pasillo central y que se remata con una sala multiusos susceptible de ser dividida en dos mediante unos paneles móviles, interponiendo un espacio de distribuidor donde se produce una salida de emergencia y unas escaleras y plataforma elevadora para acceder a la cubierta. A la derecha del eje central se sitúa el “centro acuático deportivo” propiamente dicho, dividido en piscina de ejercicios y resto de piscinas y espacios relacionados con actividades acuáticas, que se cerrará al exterior y volcará a un patio interior, con el fin de dotar de cierta privacidad a estos espacios.

El edificio se organiza en tres volúmenes de tres alturas distintas en función de la importancia del uso. El volumen más alto, con una altura a la coronación de 7,70m, corresponde a la zona de piscinas, el siguiente volumen en altura (5,75m), corresponde a la zona de salas multiusos y el más bajo (4,95m) pertenece a vestuarios, cabinas de masaje deportivo y de recuperación funcional y zonas de comunicación horizontal y entrada.

La estructura del edificio estará formada por vigas y pilares de hormigón armado. El cerramiento será de fábrica de ladrillo de medio pié, con aislamiento de 5cm y trasdosado interior con tabicón de 7cm. El revestimiento exterior será de monocapa raspado en el volumen más bajo y de paneles fenólicos de Prodema con junta vista en color marrón oscuro, en el volumen de piscinas y en el correspondiente a la sala multiusos.



