
Hoy os presentamos los apartamentos diseñados por A-cero para su marcro proyecto “The Heart of Europe” en Dubai. Como ya os comentamos en posts anteriores, se trata de un master plan de 500.000m2 edificables situado sobre seis islas artificiales frente a la costa de Dubai. Al igual que el resto de instalaciones y servicios que conforman el complejo, la zona residencial se ha diseñado de acuerdo a las características de seis países centroeuropeos: Holanda, Alemania, Suiza, Suecia, Austria y Rusia.



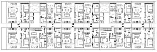
Se proponen tres tipos de apartamentos con superficies comprendidas entre 75 y 140m2.
PLANTA APARTAMENTO TIPO 1B-A1

PLANTA APARTAMENTO TIPO 1B-A2

APARTAMENTO DUPLEX
PLANTA BAJA

PLANTA ALTA

Para San Pertersburgo se desarrollan una serie de pisos de 76m2 construidos.





PLANTA BAJA

PRIMERA PLANTA


Os dejamos los enlaces de los posts anteriores sobre este proyecto por si interesa verlos:
http://blog.a-cero.com/2011/01/16/the-heart-of-europe-master-plan-en-dubai/?lang=es
http://blog.a-cero.com/2011/01/17/the-heart-of-europe-villas-en-la-playa/?lang=es
