Como ya os comenté hace un par de semanas la fundación de Endesa, ACTITUD AZUL, nos invitó a un grupo de blogueros a que visitemos su sede principal aquí en Madrid debido a que hace poco han recibido la certificación de la triple A ( certificado que demuestra excelencia en su sostenibilidad (Eficiencia Energética (UNE-E 16.001), Calidad Ambiental en Interiores (UNE 171330-3) y Gestión Ambiental (ISO 14.001)), convirtiéndose así en el primer edificio en España en recibir tan honorable nota de excelencia.
El encargo del proyecto lo recibió el estudio del Arquitecto Rafael de la Hoz en el año 1998 y los requisitos fueron claros pero nada simples. Hasta ese momento, los empleados de la empresa estaban divididos en tres edificios en distintos puntos de la ciudad; la obra debía albergar en una sola sede a sus 2000 trabajadores en un gran edificio el cual tenía que responder con respeto al medioambiente y con un compromiso a la sociedad.
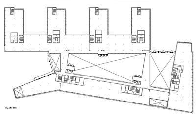
El resultado: un proyecto que está subdividido en 7 partes, cada una con diferentes tipos de fachada según su orientación y unidas en un gran atrio central que es, sin duda, el espacio principal en torno al cual gira el proyecto. El proyecto cuenta con 35 000 m2 para las oficinas y el atrio cuenta con una cubierta de vidrio 4 000 m2, que si bien puede sonar contradictorio con el concepto de ahorro de energía, el sistema con el que se desarrolló ha logrado que la compañía ahorre un 30% en gastos y consumo de electricidad en los últimos años gracias a su cubierta transparente. El techo además tiene una ligera inclinación que sirve para recoger las aguas de lluvias que pasan entre las lamas que protegen de la radiación solar el espacio interior. De esta forma se puede recolectar y reutilizar el agua para el resto del edificio. Cabe resaltar que fue aquí que por primera vez que se usó el producto de SentryGlass (vidrio doble de alta resistencia a la flexión) desarrollado por Dupont y Bellpart. El aire del atrio además es aire natural que se trae desde el exterior y que según la estación del año es regulado en el sótano a través de unas máquinas que lo hacen pasar por unos filtros a través del suelo, para que luego sea expulsado por unas chimeneas que se encuentran en la parte de arriba del techo.
La sede cuenta además con papeleras de reciclaje a lo largo de todo el complejo, cuyos residuos van a parar al centro de reciclaje que se encuentra en la planta sótano. En este lugar se hace una segunda separación de materiales y se procede a su compactación.
En el aparcamiento se pueden apreciar paneles solares, sin embargo la electricidad que se capta de momento es vendida ya que así lo dicta la legislación española. La empresa tiene de momento dos coches eléctricos aunque su objetivo es que de aquí a pocos años puedan contar con 507 coches eléctricos, que representaría media flota automovilística de la compañía.
Para culminar con la charla, Endesa nos mostró su plan de trabajo llamado “ECOELCE”, con el cual están ayudando a crear conciencia ecológica en lugares de América latina. Muchas ciudades y pueblos de esta región se ven aislados por sus propios gobiernos e instituciones, y en consecuencia se busca educar a sus poblaciones en los tres conceptos de sostenibilidad que tiene la empresa: “Ecoeficiencia, Desarrollo y Seguridad”. Lo fabuloso de esto es que está funcionando, está ganado muchos premios y está siendo copiado por más personas. Esperamos entonces que os haya gustado la nota tanto como a nosotros nos gustó la visita. ¡Que tengáis un Feliz Martes!
