
Esta vivienda de verano ubicada en el archipiélago de Estocolmo, es obra del estudio arquitectos Tham & Videgård Arkitekter. El punto de partida de este proyecto es la relación directa con el espectacular paisaje del archipiélago.

Concebida como una construcción ligera en madera y vidrio, esta casa tiene un fuerte carácter horizontal, potenciado a través del color negro que se relaciona con los troncos verticales de los altos pinos que crecen alrededor de la construcción.

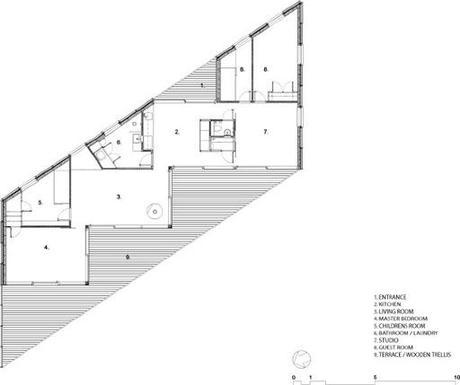
La geometría de la planta es generada por la geografía del lugar, la vivienda esta ubicada en un llano entre dos montañas rocosas, volviéndose hacia el sol en la cara sur y frontalmente hacia el mar en su parte Oeste.

La vivienda está organizada por capas, las habitaciones grandes se expanden en una relación abierta con las tarimas de madera exteriores. Las piezas horizontales en madera de las zonas exteriores, difuminan la luz diurna e incrementan el carácter de un único espacio continuo, donde la distinción entre exterior e interior queda subordinada.

En las pequeñas habitaciones situadas en la parte posterior, las áreas comunes de la casa se destacan como una plataforma abierta atravesada por correderas de vidrio. El diseño en zig-zag provoca que el resto de la casa permanezca como una plataforma abierta cruzada por paños de vidrio. Esta distribución genera diferentes espacios exteriores resguardados de los vientos.

El carácter horizontal de las caras exteriores acabadas en un negro que de apariencia manchada, se relaciona con la verticalidad de los pinos que rodean la Casa Archipiélago. Como resultado de los largos paños de vidrio y condiciones en las que prevalece la luz, reflexiones y efectos espejo, se crea una calidad donde naturaleza, espacio y horizonte interactúan entre sí.

