
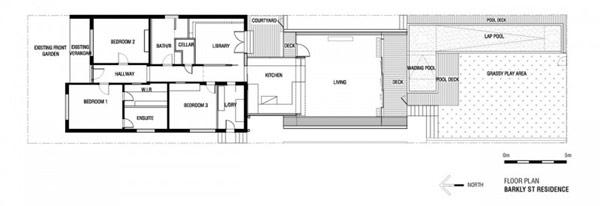
Es un proyecto de McBride Charles Ryan en Melbourne, Australia y consiste en la ampliación de una casa de estilo clásico, mediante un anexo un tanto peculiar cuyo uso es el de salón y cocina.







La cocina no tiene desperdicio tampoco... parece el tetris!!


Aunque parezca mentira, esta es la fachada principal -mucho contraste, no?-




Viendo el barrio, tiene que llamar bastante la atención semejante "nubarrón".
A mi no me termina de convencer, pero desde luego es de esas cosas que no te deja indiferente y eso es un logro...
