
Hoy el estudio de arquitectura A-cero, liderado por Joaquín Torres & Rafael Llamazares, presenta un proyecto de arquitectura efímera: el stand de A-cero para el Mutua Madrid Open de 2013.
CROQUIS


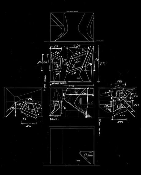
SECCIONES Y ALZADOS

MONTAJE
A-cero participará en el Open de Madrid con un stand de 7,5 m2 de superficie, situado en un enclave privilegiado, en la misma planta que el acceso público al estadio Manolo Santana, en el camino entre los palcos VIP y el restaurante VIP.

Bajo el lema “Soy abierto; soy Madrid”, el torneo se promociona como la gran cita del tenis en España y un referente del deporte internacional.


El stand está acabado en blanco, sobre el que se han proyectado una serie de líneas orgánicas en color negro, dando así una sensación de plasticidad. En el interior encontramos un escritorio cuyo interior ha sido pintado igualmente de negro, manteniendo su exterior en blanco.


El siguiente y último paso será la colocación de vinilos en las paredes del interior del stand.

Las paredes han sido cubiertas con vinilos correspondientes a distintos proyectos que el estudio A-cero ha llevado a cabo.

IMÁGENES FINALES


