
En un lugar privilegiado, en las confluencias donde desembocan las rías de Ares, Betanzos y A Coruña, se sitúa la vivienda diseñada por A-cero y que protagoniza nuestro post de hoy.
La residencia se encuentra en una parcela de más de 9.000m2 que se extiende sobre una atalaya con unas vistas espectaculares de la Costa Ártabra.



El terreno, con cierta forma rectangular, desciende ligeramente hacia al mar.


Con fachada en mortero monocapa blanco, la edificación se plantea en dos bloques rectangulares que se cruzan formando una “L” ocupando una superficie total de 800m2 construidos.


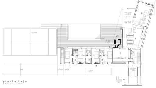
La construcción consta de tres planos diferenciados con todas las estancias abiertas al exterior para garantizar las vistas a la ría desde todas ellas. A pesar de que la vivienda se distribuye en tres niveles, la mayor parte del espacio habitable se produce en el prisma principal que ocupa la planta baja y que acoge el hall, el salón – comedor, una amplia cocina y cuatro dormitorios infantiles o de invitados. Este nivel está conectado directamente con un porche mirador (con suelo de madera de ipé) y una piscina exterior.
PLANTA BAJA




En un plano superior y ocupando el prisma menor, que además gira ligeramente sobre su base, se sitúa el dormitorio principal en suite.
PLANTA ALTA



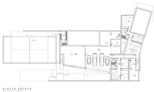
Por último se encuentra la planta inferior de la casa que, gracias al ligero desnivel de la parcela, goza de luz y estancias exteriores. En este nivel se localiza un garaje para cuatro vehículos, un trastero, un cuarto de instalaciones y una confortable zona de servicio.
PLANTA SÓTANO


Un peldañeado compuesto por plataformas de hormigón exentas forman los caminos que descienden por la parcela totalmente ajardinada hacia la pista de pádel que se sitúa en un plano inferior lateral de la vivienda.
Cabe destacar la importancia de la luz en este proyecto, en el que se dotan a las estancias de amplios ventanales que permiten el acceso al exterior.
A-cero recibió el encargo de este proyecto con el objetivo de crear una segunda residencia para los propietarios con un enfoque familiar y un programa de necesidades bien claro y definido. Los dueños priorizaron la funcionalidad en su vivienda, pero sin renunciar al diseño característico de A-cero.

