A-cero nos presenta un conjunto residencial situado a solo 10 minutos del centro de Madrid, en un entorno privilegiado con un total de 4 novedosas viviendas pareadas con un exclusivo diseño y con los mejores materiales y acabados.
Las viviendas constan de 3 dormitorios, cocina, salón – comedor, garaje con amplio cuarto de juego y jardín privado con piscina, con una superficie construida total de 345m2 y una parcela de 250m2.
Todo ello situado en un entorno privilegiado, como es el de La Casa de Campo.
PARCELA

PRIMERA PROPUESTA





PROPUESTA DEFINITIVA
PLANO PARCELA

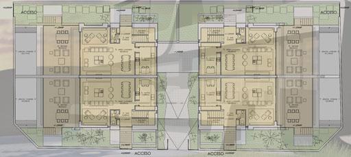
VISTA CONJUNTA DE LA URBANIZACIÓN DE PAREADOS

VIVIENDA TIPO 1
Existe un amplio equipo encargado de diseñar viviendas singulares con amplios estándares de diseño, y funcionalidad situadas en unas elevadas cotas que constituyen las bases de nuestros objetivos y metas, realizando proyectos que superen las expectativas de nuestros clientes.

VIVIENDA TIPO 2
Todas la estancias permiten el máximo aprovechamiento del espacio, con una excepcional iluminación exterior, para hacer de cada estancia un lugar ideal.

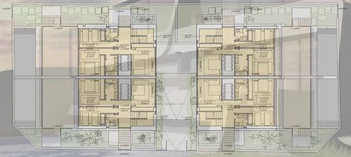
PLANO VIVIENDA TIPO 2

VIVENDA TIPO 3
Son viviendas diferentes, cada una con una característica que le hace distinta a las demás, pero en todas la distribución está muy estudiada, dentro de un entorno de máxima calidad.

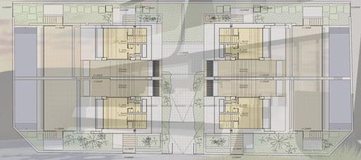
PLANO VIVIENDA TIPO 3

VIVIENDA TIPO 4
Tanto en el interior como en le exterior se busca dinamismo, pureza volumétrica de formas y espacio, en un proyecto en el que se valorarán por igual el urbanismo, arquitectura y detalle de conjunto integral y vanguardista.

VISIÓN LATERAL

PLANO VIVIENDA TIPO 4

SALÓN

COCINA

A-cero es garantía objetivos de exclusividad, diseño y calidad de promoción. Estética y funcionalidad son los pilares básicos del estudio configurando un conjunto funcional, incluyendo volúmenes rotundo y líneas rectas, en definitiva, una arquitectura para ser vivida y disfrutada con el tiempo.
