Hoy retomamos nuestra sección A Través de la Cerradura con una casa que estamos seguras de que os va a encantar tanto como a nosotras y que pertenece a Cristina, una de nuestras más fieles lectoras y clientas.
Y el lujazo no es sólo lo preciosa que es la casa y que Cristina haya querido compartirla en imágenes con todos los lectores de três sino que, además, nos la ha descrito con tanto mimo que vamos a dejar que sea ella quien os la descubra detalle a detalle.
Y ahora, os dejamos con Cristina...
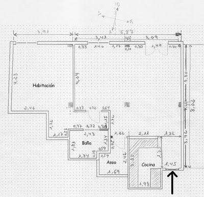
Mi casa es un apartamento de 78m2 (útiles) en un primer piso de un edificio de finales del XIX protegido (la mayoría de los edificios del Casco Viejo de Bilbao lo están en mayor o menor medida). Es el resultado de una segregación en el 2002 aprox. de un único piso en 3, de manera que desde la escalera se accede a un rellano cerrado privado con las puertas de los 3 pisos y la puerta de un trastero compartido por 2 de los pisos -suena raro pero para que se permita la segregación todos los pisos resultantes deben tener + de 75m2 útiles y disponer de al menos 1 ventana a patio.
La distribución es: un salon-comedor-cocina amplio (algo+de 40m2), un aseo con ducha(a partir de ahora baño de chicos), un dormitorio grande (algo+ de 20m2) con baño incorporado (a partir de ahora baño de chicas) y como decía un trastero compartido con otro vecino en el mismo rellano.

Lo compramos tal cual se ve, no hemos hecho ninguna obra, la cocina equipada y los baños son los originales. Ni siquiera hemos pintado.
Curiosidades estancia por estancia:(CLIC en las imágenes para ver a tamaño completo)
Cocina:




En forma de L, pequeñísima pero bien aprovechada.
Por destacar algo que me guste particularmente: la encimera es una única pieza de Corian que se eleva en la zona de aguas hasta formar el muro de media altura que separa cocina del salón comedor. No tiene juntas así que es muy cómoda de limpiar. Me gustan mucho también los cajones de 90 bajo la placa, así podemos tener los cubiertos y casi todos los gadgets de cocina juntos.
Para equilibrar algo que no me gusta nada nada pero nada: el entrepaño de baldosa rústica verde, es horrible. Estoy deseando armarme de valor para taparlo con un cristal de color o mejor aún con otra pieza de corian a medida.
Salón-Comedor:







Techos altos -3,5m- vigas de roble vistas y ladrillo, las fotos lo dicen todo. No queríamos que hubiera apenas muebles para mantener la sensación de amplitud y, para que la altura de los techos luciera aún más, ningún mueble supera los 120cm de alto, pero en cambio son todos bastante grandes.
Muebles zona comedor:
-Mesa Simpla de John Bollen y sillas 4/40 de David Roland para Howe (******)
(No estan pensados para uso doméstico pero la forma en la que se apilan las sillas y como se dobla la mesa para no ocupar espacio es sorprendente. No es que nosotros seamos muy bailones, de hecho nos declaramos sosos, pero en 30s quitas la mesa y las sillas y tienes pista de baile)
-Lámpara de techo Midsummer de Tord Boontje para Artécnica.
(Tenemos una segunda en el armario pendiente de colgar; desde hace 4 años)
-Lámparas de pie Lamp cord de Design House
-Escultura de C. Jere
Muebles zona salón:
-Sofá Lowland de Patricia Urquiola para Moroso
-Composición serie Modern de Piero Lissoni para Porro (*****)(Desafortunada combinación de nombres de productores de muebles de prestigio que, sin embargo, no implica necesariamente que los dueños del apartamento seamos ni porreros ni morosos ;)
-Alfombra Dolce de Martin Azúa y Gerard Moliné para Nani Marquina (vía vente-privée)
-Mesita Tokyo de Piero Lissoni para Porro.
(Tras 2 intentos fallidos de que el dormitorio llegará sin golpes de Italia para el tercero, los italianos decidieron que el color de la laca podía haber cambiado así que nos lo enviaron otra vez entero y, sobró esta mesita que adoptamos y que ha encontrado su nuevo hogar en nuestro salón)
-Lampara de pie modelo Fuga de Ikea.
-Láminas Silhouette I y Silhouette II de Gustav Klimt
Algo que me gusta particularmente: la pared de ladrillo se ilumina con focos halógenos empotrados en el suelo, y como la pared es muy irregular el efecto de luces y sombras es muy cálido. Otra cosa que me gusta es que tanto el salón como el dormitorio tienen instalación de luz/telefonía/TV a través de cajas portamecanismos empotradas en la tarima, además de la tradicional en pared.
Muebles zona estudio:
-Mesa modelo polar de La Oca
-Flexo modelo Notech de Kundalini
-Silla stokke balans
Baño de chicos (*):

Algo que me gusta particularmente: El suelo azul de placas caucho (es el típico suelo de ascensor pero de colorines)
Baño de chicas (*):

-Lavabo de corian con el desagüe oculto (diseño del dueño anterior)
-Griferias Axor Starck Classic.
-Bañera de acero esmaltado de Kaldewei
Algo que me gusta particularmente: el suelo naranja de placas caucho y la combinación de baldosas de puntos claros sobre fondo oscuro con baldosas de rayas blancas sobre fondo claro.
Dormitorio:



Muebles zona paso:
-Armario Pax Vikedal de Ikea(**).
(Del de las puertas de espejo, para que haya más luz en el pasillo y además de amplitud, no hay fotos porque es imposible no salir en ellas ;)
-Cómoda Malm de cuatro cajones de Ikea.
Muebles dormitorio:
-Cama y mesita modelo Tokyo de Piero Lissoni para Porro
-Lamparitas modelo Toobe de Ferruccio Laviani para Kartell
-Flores de papel de Hábitat
-Sillas 4/40 de David Roland para Howe.(Para cuando viene + gente a comer. Giramos la mesa y colocamos 2 sillas + al pie y a la cabeza de la mesa. Nos pareció original que 4 fueran negras y 2 blancas para intercalar, además las blancas quedaban mejor en el dormitorio -su ubicación habitual-)
-Armario desconocido, nos lo dejaron los antiguos dueños pero es de alguna marca alemana del tipo Ikea porque es para automontaje -encontramos las instrucciones al fondo fondo fondo de alguno de los cajones-.
Algo que no me gusta particularmente: La pared pintada de verde pistacho detrás del armario, entendería que hubieran pintado la pared del cabecero aunque nosotros, teniendo ya una pared en ladrillo, no lo hubiéramos hecho, pero la del armario ¿para qué?
Trastero:
Este piso NO sería posible sin el trastero donde tenemos bicicletaS, equipoS y botellaS de buceo, esquís, patines y la caldera. Y sin todos esos muebles que parecen sólidos cuando en realidad encierran cajones ocultos...
TRUCOS:
(*) La separación en baño de chico, baño de chica es 100% recomendable para la convivencia :D
(**) Para uniformes de trabajo, ropa de deporte, zapatos y "cajón de los gurruños" (***)
(***) Otra maravilla para la convivenvia: cajón donde el no-amante-obsesivo-del-orden-de-la-pareja puede introducir la ropa o lo que disponga sin doblar/lavar y sin que yo, que soy la obsesiva, lo tenga que ver y me altere el yang o lo quiera que se que sea que se me altera cuando veo las cosas fuera de su sitio.
(****) Las ventanas llevan vinilo opaco hasta 180cm del suelo aprox. No tenemos cortinas, ni persianas aunque sí unas venecianas en el salón y un estor enrollable en el dormitorio.
(*****) Los muebles blancos son lo más limpio del mundo, los muebles negros son un horror. El all-white-mate no es sólo una cuestión estética sino también práctica ;)
(******) ¿Os habéis fijado en los invididuales, las tazas y la jarra que hay sobre la mesa del comedor? ¡Son de três shop! ;)
¡Muchísimas gracias, Cristina, de parte de las três!
Desde luego, eres tan genial como tu casa, te agradecemos muchísimo que hayas querido compartirla con nosotras y, sobre todo, con los lectores del blog.
¡Esperamos que os haya gustado!
Ya sabéis que si vosotr@s también queréis compartir vuestra casa en el blog, podéis mandarnos vuestras imágenes y todos los detalles que os apetezcan a [email protected]
Un abrazo
Maca =)
