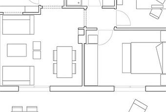
Os adjunto el plano para que veáis la distribución:

Y os cuento un poquito por habitación:
ENTRADA


Es pequeñita. No había posibilidad de poner un mueble por lo que recurrimos a esos cubos de cocina de ikea que tienen la puerta de pizarra como almacenaje.
Los pintamos de blanco y le pusimos un espejo en el interior de cada puerta para "acicalarnos" antes de salir de casa.
Lo que más me gusta es el contraste con los percheros de perritos, también de ikea. Además, el marco de entrada está decorado con unos dibujos que pinté a mano de Haring en tonos blanco-gris.-negro.
COCINA



Esta ha sido la que más quebradero de cabeza nos ha dado. Sobre plano movimos el tabique que conecta con el salón 30 cm para facilitar montar una línea de muebles.
No tenía prácticamente posibilidad de colocar muebles altos ya que entre el pasaplatos al salón, la ventana en la pared del frente, la campana extractora y la puerta de entrada no me dejaron ninguna pared libre. Así que recurrimos a poner baldas donde dejamos el menaje más usado: los platos y los vasos.
Para poder introducir el lavavajillas, la zona de cocción es más estrecha de los normal, sólo mide 45 cm y es por ello que la vitrocerámica sea alargada de 4 fuegos y no la estándar cuadrada.
Cuando nos dieron el piso me horrorizaron las cenefas; son superior a mí y no me gustan nada... Pues sobre la marcha quitamos el alicatado hasta media altura, pusimos unos listones de acero inoxidable y pintamos la parte superior del mismo color que el salón, rojo cereza.
Con todo ésto resultó una cocina muy pequeñita pero muy apañada, con todos los muebles necesarios y el suficiente espacio de almacenaje.
SALÓN



El salón queda dividido en dos espacios. El primero, destinado a estancia, esta amueblado con dos sofás de ikea enfrentados con uno de los reposacabezas eliminados, permitiendo así que se puedan abrir las puertas correderas del mueble. Éste es un mueble de DM lacado en color blanco hecho a medida, de tres módulos independientes que me permiten colocarlos en cualquier otra estancia y darle uso. Sobre él, la tapa gris es de pladur pintada con pintura de esmalte. Si te fijas, he procurado en todo momento que las cosa puedan ser cambiables, es decir, que con una simple capa de pintura se le pueda dar otro estilo a las estancias.
La otra zona es la de comedor. La mesa y las sillas son también de ikea, pero estas últimas las tapizamos para darle un estilo más moderno. La pared del fondo está pintada del mismo color que la cocina y eso da armonía al conjunto.
El mueble bar está planteado aprovechando el hueco que quedaba al lado del pilar; de nuevo acudimos al pladur e hicimos ese mueble adosado con puertas de cristal para proteger el interior y con el fondo pintado también de color cereza.
En el marco del hueco que da paso a los dormitorios pinté un código de barras que tiene su significado: es la fecha en la que nos conocimos y nos casamos mi marido y yo ;)
BAÑO

El baño es el que más se ha transformado. Sobre plano quitamos el bidé, pusimos plato de ducha y el lavabo para encastrar.
Además, siguiendo con mi manía a las cenefas... ¡fuera alicatado!. Sólo en la zona de ducha. Así quedó el baño en un color verde en el que contrastan los 3 cuadros de líneas de colores.
DORMITORIO


Tenía claro que no quería un cabecero convencional. De ahí que hiciéramos un murete de pladur que nos hiciera las veces de arcón para almacenar cosas. Muy práctico para guardar cajas de zapatos de otras temporadas y libros que ya no caben en la estantería. El murete lo pinté de colores alegres para darle vida al dormitorio. Además, al ser orientación sur no se hace la estancia fría con ese color celeste.
Las lámparas son de "biosca botey". Sobre el armario hay dos puntos de luz y otros dos colgando sobre cada mesa de noche.
DESPACHO


Ahí me paso horas y horas... La estantería es de ikea y le hice ese dibujo de flores con papel de colores pegado sobre el panel para darle vida a las puertas.
Todos los frentes de las cajas están forrados con el mismo esquema de colores: naranja-rojo-verde.
Y creo que poco más hay que contar. De la terraza mejor no os mando fotos todavía porque es mi "causa pendiente" y, si os parece, la dejamos para "futuras entregas".
¡Muchísimas gracias Mariola!Gracias por tu amabilidad y, por supuesto, por compartir con los lectores de três vuestra preciosa casa. ¡Eres una artistaza de los pies a la cabeza!;)
Un abrazo muy fuerte para tod@s y feliz jueves=)
pd: os recordamos que si vosotr@s también queréis compartir vuestra casa en três, sólo tenéis que poneros en contacto con nosotras en [email protected]
