
Hoy os mostramos nuevas imágenes del avance de obra del proyecto diseñado por el estudio de arquitectura A-cero, para la rehabilitación del antiguo mercado municipal de Abastos de Getafe.
El proyecto diseñado por A-cero trata de una dotación novedosa, con una concepción multiusos, que podrá albergar ferias y eventos comerciales, actividades culturales o exposiciones de arte, entre otras.
UBICACIÓN
El nuevo Centro de Usos Múltiples tiene lugar en el antiguo Mercado Municipal, ubicado en una parcela urbana situada en la Plaza de la Constitución c/v a la Calle Jardines, en el municipio de Getafe, Madrid.

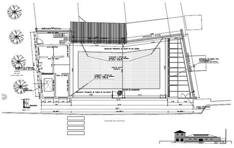
PLANOS ESTADO PREVIO | ALZADOS

PLANOS ESTADO PREVIO | SECCIONES

PLANOS ESTADO PREVIO | PLANTA BAJA
El solar es de forma irregular con una superficie de 510m2. El conjunto está formado por dos edificios y un solar vacio. El primero de ellos con dos plantas de altura alberga la entrada principal y da frente a la Plaza de la Constitución.

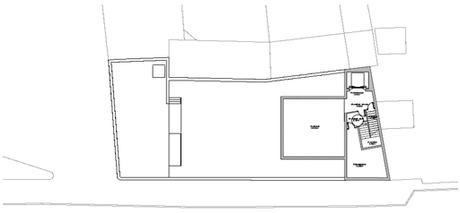
PLANOS ESTADO PREVIO | PLANTA ALTA

IMÁGENES ESTADO PREVIO | FOTOGRAFÍAS EXTERIOR
El conjunto presenta fachada a dos calles y medianera con tres parcelas colindantes; una de
ellas construida recientemente con un edificio de viviendas de 5 plantas; las otras edificaciones
de una y dos plantas respectivamente son de carácter similar al edificio de servicios del conjunto que se pretende rehabilitar.


IMÁGENES ESTADIO PREVIO | FOTOGRAFÍAS INTERIOR
El segundo edificio constituye el cuerpo principal del antiguo Mercado , es un espacio diáfano de gran altura cubierto con un entramado de cerchas de hormigón atirantadas con cables de acero y junto con el solar vacio, tras una demolición parcial del antiguo mercado, forma el frente a la Calle Jardines.

PROYECTO DE REHABILITACIÓN DISEÑADO POR A-CERO
El proyecto de rehabilitación del mercado de abastos contempla dos plantas más un sótano con un total de 750 metros cuadrados útiles. La primera planta acogerá el vestíbulo, una sala polivalente, salas de servicio y almacén, la segunda planta dos aulas de conferencias y zonas comunes, y la planta sótano, zona de almacén.
ESTADO REFORMADO | ALZADOS

ESTADO REFORMADO | SECCIONES

ESTADO REFORMADO | PLANTA SÓTANO
En planta sótano la superficie queda dividida en la escalera, un vestíbulo previo, cuarto de instalaciones, vestíbulo de almacén, almacén, cuarto de limpieza y montacargas.

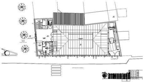
ESTADO REFORMADO | PLANTA BAJA
En planta baja, la superficie útil de 450m2 aprox. se distribuye en un vestíbulo, recepción, escaleras, ascensor, ofice-ropero, distribuidor de aseos, dos aseos + aseo de minusválidos, sala de exposición, escaleras y montacargas.

ESTADO REFORMADO | PLANTA ALTA
En planta alta, con un total útil de 205m2, encontramos un vestíbulo pasarela, un vestíbulo para los aseos y dos salas de exposiciones.

ESTADO REFORMADO | PLANTA ALTA

ESTADO REFORMADO | VISTA INTERIOR
Se plantea un único acceso principal por la plaza de la Constitución , y un acceso diferenciado
para carga y descarga por la Calle de los Jardines.
Se propone una imagen moderna y en cierto modo tecnológica que albergue o proteja en su interior un antiguo edificio que conservará todo su carácter original manteniendo los muros, las cubiertas de bovedillas cerámicas, las cerchas de hormigón…. Se potenciarán utilizando materiales duraderos y del mismo carácter industrial del edificio como el hormigón pulido, microcemento, etc.

ESTADO REFORMADO | VISTA EXTERIOR
La idea de proyecto trata de conservar el carácter del edificio así como los elementos más característicos y diferenciadores de las edificaciones a rehabilitar. Se mantienen volumétricamente ambas edificaciones con sus muros de ladrillo y sus cubiertas.

Se plantea una fachada a modo de piel formada por costillas que atraviesan transversalmente el edificio emulando el ritmo de las cerchas interiores del espacio diáfano que formara la sala de usos múltiples y que permiten ver la antigua fachada de ladrillo entre ellas. Al mismo tiempo se convierten en la fachada a la Plaza de la Constitución y permiten ocultar las medianeras adyacentes. Como elementos de preexistencia se mantiene la entrada y el balcón de hierro fundido de la primera planta que seguirán marcando la entrada al edificio. Del mismo modo se propone una envolvente a modo de piel para proteger la cubierta de cerchas de la sala principal a modo de lucernario y que alberga en su interior la pasarela que unirá los edificios preexistentes con la parte de nueva construcción.

Esta pasarela ademas de formar parte del sistema de comunicación del edificio se convierte en mirador sobre la cubierta de la nave, zona de estancia (graderio)y de relación. Las costillas planteadas tendrán un papel muy importante como mitigadores de la entrada de luz y calor en los lucernarios sobre la sala principal y albergarán la iluminación del edificio. Esta regulación lumínica se verá potenciada por la utilización de estores motorizados que se adaptarán a las necesidades del espacio en cada momento.

IMÁGENES AVANCE DE OBRA







