
Hoy queremos ofreceros un nuevo avance del reportaje fotográfico de la vivienda Balcony House diseñada por A-cero. Próximamente dedicaremos a esta magnífica vivienda nuevos y extensos post con imágenes diurnas, nocturnas e interiores.
Esta vivienda unifamiliar consta de una superficie de 952 m2 dispuesta en 3 niveles y asentada en una parcela independiente de 2000 m2 con una ubicación privilegiada en un entorno natural, y a tan solo 14km del centro de la capital.
CROQUIS




ALZADOS


SECCIONES

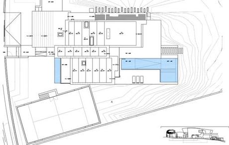
PLANTA SÓTANO
En la planta sótano se localizan las siguientes estancias: un trastero, un cuarto lencero, una lavandero-planchero, una bodega, un gimnasio de 72 m2, un baño turco, un vestuario, un almacén, un aseo y dos cuartos de instalaciones.
Además como espacio no cubierto, el gimnasio cuenta con un patio de 28 m2.

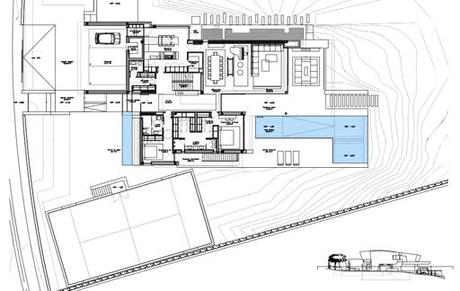
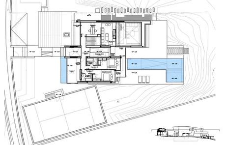
PLANTA BAJA
En esta planta encontramos zonas tanto comunes como privadas. Por un lado ubicamos un ropero, un aseo de cortesía, una cocina de 35 m2 con despensa, un comedor de 27 m2, un salón de 49 m2 y un trastero. Y, por otra parte, se localizan en este mismo nivel el dormitorio principal en suite de 24 m2 con vestidor de 20m2 y un segundo dormitorio en suite de casi 26 m2.
Como zonas exteriores cubiertas encontramos un garaje con capacidad para 3 coches, y porches para el acceso de la vivienda, el salón y el segundo dormitorio.
Por último, un acceso peatonal, otro rodado, una lámina de agua, una terraza-solarium y una piscina de 54 m2 como espacios no cubiertos.

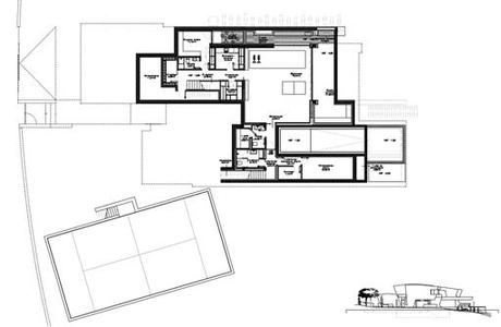
PLANTA ALTA
En la planta superior de nuevo se combinan estancias comunes y privadas. Se pueden ubicar una sala de estar, un despacho, una pasarela de vidrio que a su vez cumple una función de librería, y dos dormitorios en suite de 26 m2.
Además, esta planta cuenta con porches para los dormitorios, para la terraza de 18 m2 y para el despacho.

PLANTA CUBIERTA

AVANCE IMÁGENES INTERIORES
El interiorismo de esta vivienda ha sido diseñado por el estudio A-cero. Este diseño es el reflejo de su arquitectura exterior. Se aprovecha la amplitud de los espacios amplios y las dobles alturas con estructuras de madera que envuelven las estancias.

Esta amplitud de espacios se ve reforzada por la gran cantidad de luz natural proveniente de los amplios ventanales existentes en todos los niveles, tanto en zonas de uso común como estancias más privadas.

El mobiliario del salón al igual que el de la cocina se ha diseñado y construido a medida para el cliente, con acabados de gran calidad.




La iluminación led es la protagonista en el interior, marcando la arquitectura y creando líneas que enmarcan los espacios.

Existen diferentes piezas creadas a medida para diferentes usos, como puede observarse en este mueble de bodega.

La mayoría de estas piezas están disponibles en nuestro Showroom de A-cero In situado en la C/Castelló 66 de Madrid.

