
El estudio de arquitectura A-cero presenta hoy la reforma de una vivienda unifamiliar situada en una exclusiva urbanización madrileña y os mostramos nuevas imágenes del proceso constructivo. Se trata de una vivienda existente a la que se le va a aplicar una reforma integral, tanto exterior como interior. La vivienda se encuentra en un complejo residencial privado situado en una parcela de 100 hectáreas que ofrece unas calidades exclusivas : un diseño “a medida” de cada vivienda, materiales selectos, protegida por un perímetro de seguridad con dos entradas una de propietarios y otra de visitantes, un carril bici y circuito de footing.
CROQUIS




EMPLAZAMIENTO
La parcela, de forma regular de 3.000 m2, limita con las viviendas de una de las hileras norte con espacios comunes y al sur con la via de acceso a la misma y la otra hilera a la inversa: al sur con los espacios comunes y al norte con la vía de acceso.

SECCIONES


ALZADOS


La vivienda consta de sótano + 2 plantas, y la planta cubierta, practicable, con zona chill Out.
PLANTA SÓTANO
En este nivel se ubica la piscina interior de 85m2, con la zona de cuarto de instalaciones.

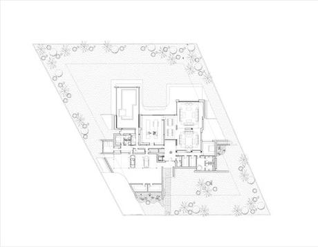
PLANTA BAJA
Este nivel, de acceso a la vivienda, es la zona de uso común. Consta de una cocina de 40m2, salón de 116m2, comedor de 32m2, gimnasio, baño turco, piscina de 40m2 exterior, zona de lavado – planchado, y el area de servicio con dos dormitorios de 14m2 cada uno y 2 aseos. Cuenta con un garaje exterior de 108m2, porche de acceso a la vivienda de 23m2. En esta planta se encuentran 2 dormitorios completos con vestidor de 42m2 totales cada uno acompañado de una terraza exterior de 45m2.

PLANTA PRIMERA
Este nivel está destinado a la zona más privada de la vivienda donde se diseña el dormitorio principal de 130m2, en el que incluye un distribuidor, baño, vestidor y el propio dormitorio. Se diseña un despacho de 30m2 y junto a él 2 dormitorios completos de 31m2 cada uno. Como exteriores se diseña un porche de 18m2, una terraza para el dormitorio principal de 117m2, terraza en el despacho y un patio.

CUBIERTA




La idea inicial es integrar cada edificación en el entorno orientándola a las fantásticas vistas de los lagos y protegiéndolas del sol con pérgolas y porches. El proyecto evoluciona ligado a estos condicionantes con un juego de dos volúmenes rotundos, de forma rectangular, maclados formando un esquema que resuelve la distribución de cada edificación con unos acabados limpios y la presencia del color en fachadas de materiales naturales.



ESTADO ORIGINAL
Así se encontraba la vivienda en su estado original previa reforma.



PROCESO CONSTRUCTIVO
Aquí tenéis una serie de fotos de obra para que podáis apreciar la magnitud de la intervención por parte de A-cero .
































