Textos:De la redacción de Croquizar. Decir mucho, en pocas líneasEn base a fuentes libres citadas en el artículo
La mas nueva de las Plantas de Producción de BMW, representa un concepto diferente en la producción de vehículos. Allí se combina el proceso de construcción con las actividades diarias que rodean una fábrica de estas dimensiones.
La casa automovilística alemana ha intuido la importancia de ligar su propia marca, dedicada desde siempre a una línea proyectiva de diseño elegante y sensual, a una imagen cautivadora y moderna de sus espacios, oficinas, talleres y cuarteles generales.
Gran parte de las estructuras de la factoría siguen el habitual diseño industrial y el estilo de fachadas de otras fábricas BMW. Sin embargo, en el centro del complejo se ha erigido una estructura singular, obra de los arquitectos Zaha Hadid y Patrick Schumacher.
Este centro administrativo y de comunicaciones combina un moderno diseño con una gran funcionalidad y versatilidad. El edificio une las áreas de producción, proporcionando un atajo en la comunicación de diferentes dependencias, y ofreciendo espacios comunes para el encuentro entre los trabajadores, o de los trabajadores con los visitantes de la planta.
El diseño resultó de una competición en la que participaron un total de 24 propuestas. El proyecto fue elegido por unanimidad entre los miembros del jurado, compuesto por representantes de BMW y expertos en arquitectura. En segundo lugar quedó la propuesta de Lab architecture studio y Karres en Brands; y en tercera posición el diseño de Peter Kulka y Peter Kluska.
En 2005 recibió el German Architectural Award, uno de los galardones más prestigiosos de la arquitectura alemana.
El edificio central es entrelazado con las tres áreas de producción principales de la planta. Desde aquí todas las áreas pueden ser vistas o experimentadas.
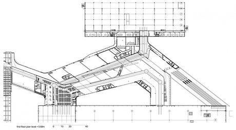
Una estructura de oficina parecida a un puente se separa del edificio central y une dos hangares de la fábrica, formando un pequeño patio de entrada. Apoyada sobre soportes macizos de hormigón en forma de aletas, el área de oficina está diseñada como un segmento de autopista elevado. La estructura más dinámica es un salón bajo de muestras inclinado, que es el punto de entrada al complejo. Los visitantes que llegan deben reducir la velocidad para dar la vuelta por delante del salón de muestras y luego guiarse a través de un área de aparcamientos orientada en diagonal al edificio principal. Después del parking, pasan bajo el puente de oficinas para alcanzar la entrada principal, como si saltaran entre los edificios.
Dentro del edificio central, el primer impacto es la escala. Es un inmenso espacio completamente abierto y sin ninguna pared recta. Las oficinas están organizadas como una serie de terrazas de concreto que parecen caer en cascada.
Filas de carrocerías son llevadas sobre transportadores automatizados de 600 metros construidos especialmente. Como cada coche es pasado a través del edificio central en su camino desde el área de Cuerpo, Pintura o desde la planta de Ensamblaje, pueden ser supervisados en todas sus etapas. En ciertos puntos, los coches se paran y giran sobre platos giratorios antes de ser desviados en una nueva dirección. Ingenieros y diseñadores pueden salir desde sus terrazas de oficinas en plataformas de inspección de cristal incluidas para mirar los enormes brazos robóticos articulados giratorios que sueldan los marcos de los vehículos.
La organización del edificio explota la secuencia “frente-contrafrente” en lo funcional, ubicando los aspectos públicos al frente y las actividades más retrospectivas hacia el fondo. La envolvente de fachada se retira en la planta baja hasta el punto interior desde donde, en diagonal, se proyecta el segundo nivel. Allí la cinta de vehículos desciende para permitir una lectura total de funcionamiento a los visitantes que ingresan desde el lobby vidriado. La profundidad de este edificio se “abrió” con el uso de patios que aportan luz natural y dejan que el corazón funcional sea visto desde afuera. Para aumentar la transparencia del edificio, las placas estructurales de hormigón están caladas, comunicando con patios y salas vidriadas. En las zonas de la transición entre los pasillos de la fabricación y el espacio público, el edificio central actúa como “mediador”, creando un impacto positivo sobre el ojo del espectador.
Para el diseño interior se requerían soluciones específicas. Por este motivo, BMW desarrolló en estrecha colaboración con la firma de mobiliario de oficina Bene un completo programa a partir de los modelos de su catálogo. Ejemplo de ello son las pantallas divisorias, diseñadas en una versión transparente, que permiten el contacto visual entre los trabajadores y sirven como enclave personal dentro del gran espacio de la oficina. De esta forma, se han creado lugares individuales de trabajo que quedan visualmente conectados con el espacio que los rodea. Por su parte, uno de los pocos modelos del catálogo Bene que no se ha modificado han sido los muebles de almacenaje móvil Caddy. Para esta novedosa oficina también se han concebido centros de estudio individuales, unos espacios con aislamiento acústico perfecto que se utilizan para reuniones importantes del personal ejecutivo o como islas de comunicación para todos los trabajadores.
Programa: Fábrica / Oficinas / Servicios Ubicación: Leipzig – Alemania Autores: Zaha adid Architects Fecha: 2011Fuente
Fotografía














Modelado 3D


Recaudos Gráficos




