
Continuamos con otro ejemplo de proyectos residenciales más pequeños y asequibles realizados por A-cero. En este caso se trata de una casa situada junto a la ría de Ferrol en el municipio coruñés de Fene.
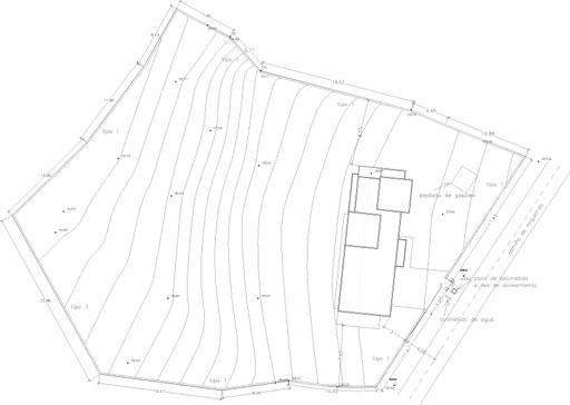
La edificación se emplaza en una parcela de 2.000m2 que linda con la vía de acceso y con otras propiedades a ambos lados. Su orientación es de Sureste-Noroeste con vistas hacia el jardín y la ría de Ferrol.


El programa para este encargo consiste en una construcción de 225m2 (incluido el garaje) destinada a residencia habitual sin obviar el entorno en que se sitúa. Ambas ideas marcan la distribución de los espacios interiores y el empleo de materiales. De estas conclusiones nace un dinámico juego de cornisas y volúmenes rectangulares a distintas alturas.

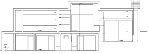
SECCIÓN

La claridad del esquema de fachada se refuerza con la limpieza en el planteamiento de los acabados. Se ha optado por un material económico que apenas necesite mantenimiento como es el Cotegran, que se ha aplicado a toda la edificación.
Los porches, tan volumétricos como la vivienda, son forjados que salen del interior para protegernos del sol en el exterior y dan personalidad a la volumetría de la fachada.
Asimismo, se puede apreciar la original solución del garaje al que se le ha dado especial protagonismo en la fachada de forma que los automóviles de los propietarios parecen disfrutar también de las excelentes vistas. Y es que la pendiente de la parcela, hace que desde la calle se introduzca el vehículo dentro del conjunto arquitectónico como un parking semiabierto.

ALZADO

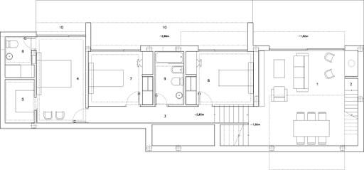
En el espacio interior se ha buscado una distribución sencilla y funcional. La vivienda consta de tres plantas diferenciadas por su uso y conectadas entre los distintos niveles por una escalera interior de dos tramos.

Se continúa con la misma dinámica que el exterior de la construcción con colores puros y acabados naturales. Para el acabado del suelo se ha elegido mármol tarima de madera, mientras que en paredes y techos ser ha optado por pintura color blanco.
En la cota de acceso se sitúa la planta alta que distribuye las zonas más públicas de la vivienda: entrada, garaje, aseo, cocina, comedor y un salón con techo en doble altura. Todas las estancias están orientadas a las vistas del jardín.
PRIMERA PLANTA





En la planta baja se localiza el dormitorio principal, cuarto de baño, despacho y un dormitorio de invitados (también con cuarto de baño propio). Al igual que en el nivel superior, todas las estancias de la planta baja están orientadas hacia las vistas del jardín.
PLANTA BAJA



Situados en un nivel inferior se distribuyen los cuartos de instalaciones que reciben luz directa y ventilación desde el exterior mediante un patio interior.
Con esta pequeña vivienda unifamiliar nos reafirmamos en la búsqueda del detalle de igual modo que la pureza de formas y espacios.
