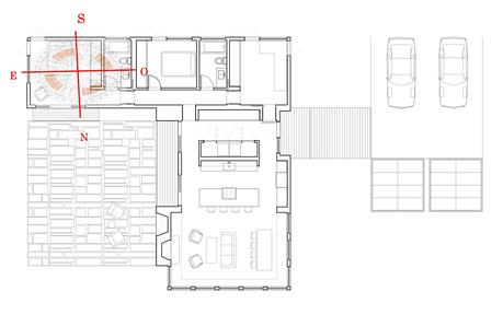
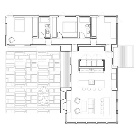
Las casas en L no son recomendables, al igual que las que tienen forma de triángulo o con muchos faltantes.
Lo ideal son cuadradas o rectangulares.
Pero como no todo el mundo tiene la casa ideal.
Hoy te muestro la manera de trazar el Mapa Bagua con la Brújula, en una casa en la que la forma en L es muy acuciada y no un pequeño refuerzo, los 3 planos son adecuados hacerlos:
✔️Primero a nivel macro abarcando todo el plano con las áreas faltantes.✔️ Segundo trazo de la brújula solo a la parte mayor de la L.✔️Tercero al saliente más pequeño.
De esta forma logramos reforzar toda la casa y podemos manejar información útil para equilibrar.
Esto mismo se puede hacer con la Escuela Budista si es la que usas.
Feliz día!!! Graciasss 💗💗www.elsecretollegoamivida.comwww.cursosfengshui.comYa estoy en telegram 😁 :https://t.me/fengshuielsecretollegoamivida
#elsecretollegoamivida #fengshui #energiapositiva #consejosfengshui #cursofengshui #decoracion #decoracionfengshui #decoracionhogar #fengshuistyle #rata2020 #yomequedoencasa #ibiza
