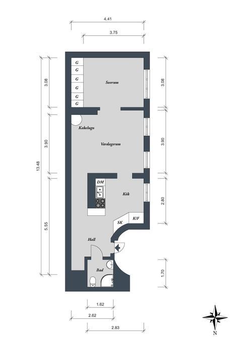
Generalmente las viviendas alargadas, también conocidas como viviendas “tubo” son difíciles de distribuir y decorar, ya que todas las piezas tienen que ser de paso. Hoy en el Blog de decoración Boho chic Style, os traigo un apartamento en el que podéis ver lo bien que han solucionado la distribución.
Un apartamento con una decoración de estilo contemporáneo donde en cada rincón encontramos ideas a tener en cuenta. El blanco es el color principal, lo encontramos en paredes, techos, suelos, carpintería… Y el color lo aporta todo el mobiliario y los textiles.
¿Comenzamos con nuestro # Tour de Decoración?
# El salón. Es la pieza central, desde él podemos acceder a la cocina y al dormitorio. Al ser un salón de paso, la distribución tiene que estar pensada para que el acceso tanto al dormitorio como a la cocina sea lo más fluido posible.
Por esta razón, a una lado tenemos los conocidos muebles Besta de Ikea a modo de mueble de TV con almacenaje y al otro lado el sofá acompañado por un juego de 3 mesas nido en madera, un gran sofá de 4 plazas y una alfombra en tonos grises perfecta para enmarcar el espacio.


El detalle de poner los 4 módulos Besta de Ikea a modo Estantería me parece precioso, es económico y my vistoso.


Los detalles son siempre importantes y con ellos conseguimos que nuestras casas sean únicas y diferentes. Mira en la siguiente imagen como han decorado la maceta… Con un simple saco de papel y lo bien que queda!! ;)

# El dormitorio. Se encuentra al final de la vivienda y se accede directamente desde el salón. El espacio es amplio y cuenta con un gran ventanal desde el cual entra mucha iluminación natural.
En uno de los lados varios módulos de armarios con puertas abatibles, perfectas para guardar todo aquello que queramos. La cama con un cabecero textil en color gris jaspeado a juego con los cojines y la alfombra, unos cuadros y una lámpara colgante dorada son los elementos que decoran este dormitorio.



# La cocina. Es el espacio que encontramos nada más entrar en el apartamento, con muebles blancos de líneas rectas y encimera de madera. Para proteger la pared de las salpicaduras del fregadero o de la cocina, han utilizado el conocido azulejo tipo “metro” en color blanco.


Junto a la cocina, el comedor compuesto por una mesa redonda con 4 sillas a juego, todo en color negro.


# El Hall de entrada. Junto a la puerta de entrada han conseguido crear un espacio muy acogedor, con tan sólo un espejo, una silla, una mesa auxiliar y una planta. En la puerta de entrada hay un hueco y en vez de hacer un armario cerrado han decidido colocar un par de balda con una barra para poder colgar la ropa de abrigo.



# El plano.

¿Os ha gustado esta vivienda? ¿Os ha gustado como han resuelto la distribución y la decoración?
Un saludo a todos y feliz jueves! ;)
Imágenes vía Nicety Livejournal (Alvhem)
